オフィス
物件ID: JPN-P-0032L6即入居可
(仮)七条通間之町材木町計画
京都府京都市下京区材木町499
19,900 円 - 33,511 円/坪から
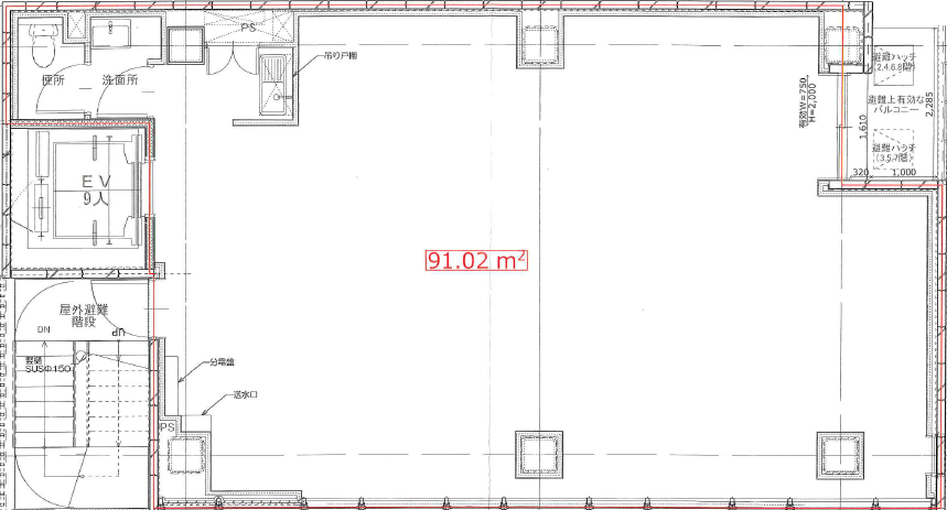
- 募集面積:22.53 - 27.64 坪 / 74 - 91 m²
- 物件詳細
- 物件概要
- 所在地
- 平面図
- お問い合わせ
※基準階とは、多階層ビルにおいて基準となる平面を持つ階になります。
※このページに含まれる情報は、一般的な情報提供のみを目的としています。特に空室状況については現況が異なる場合があるため、詳細についてはお問い合わせ下さい。

