
オフィス
物件ID: JPN-P-0046X0新築・竣工予定
THE VILLAGE SAPPORO(いちご若草札幌ビル)
北海道札幌市中央区北二条西3-1-2他
坪単価:お問い合せください
- 募集面積:200.62 坪 / 663 m²
- 物件詳細
- 物件概要
- 所在地
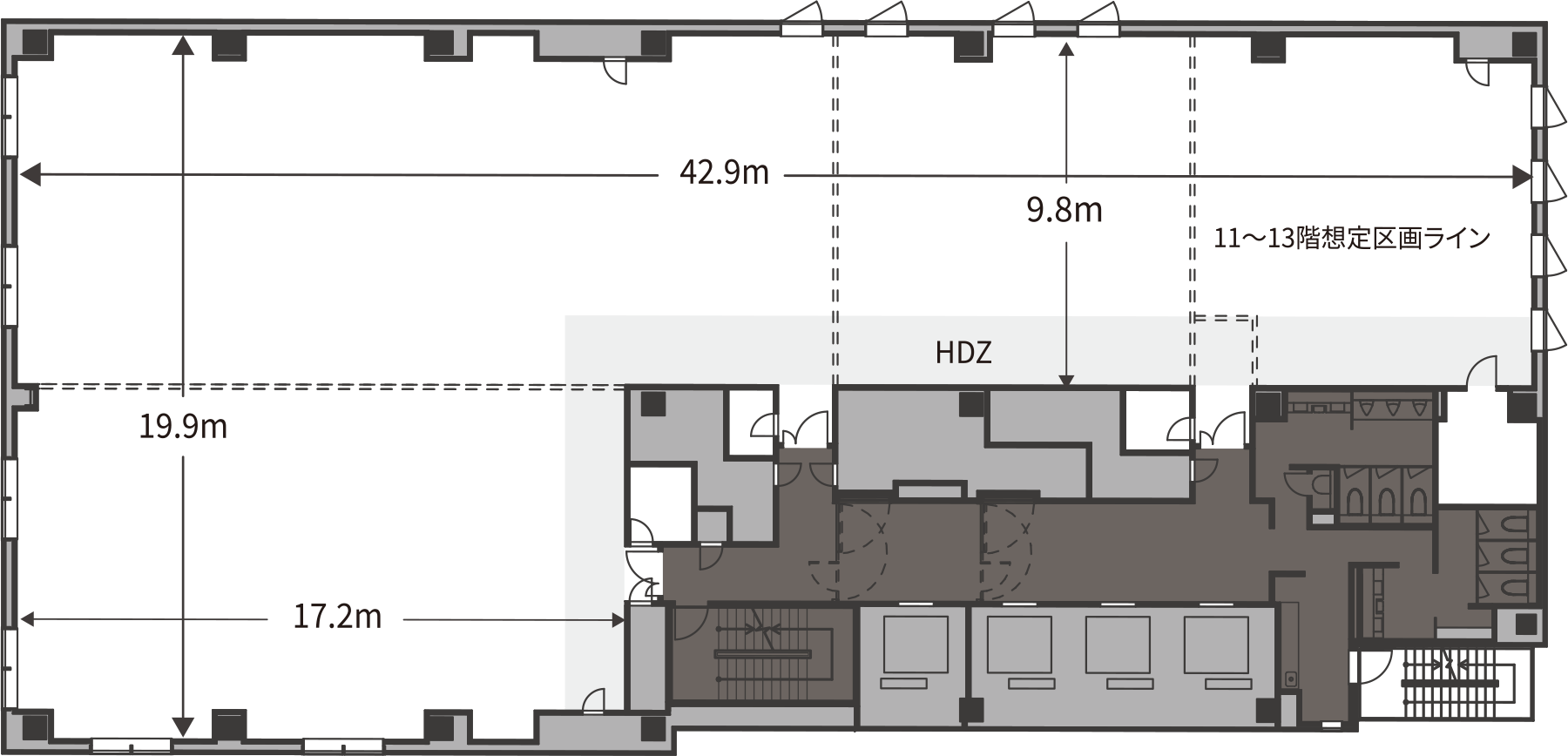
- 平面図
※基準階とは、多階層ビルにおいて基準となる平面を持つ階になります。
※このページに含まれる情報は、一般的な情報提供のみを目的としています。特に空室状況については現況が異なる場合があるため、詳細についてはお問い合わせ下さい。

北海道札幌市中央区北二条西3-1-2他
坪単価:お問い合せください
※基準階とは、多階層ビルにおいて基準となる平面を持つ階になります。
※このページに含まれる情報は、一般的な情報提供のみを目的としています。特に空室状況については現況が異なる場合があるため、詳細についてはお問い合わせ下さい。