南船場4-4-10
南船場4-4-10
南船場4-4-10
南船場4-4-10
南船場4-4-10
オフィス
物件ID: JPN-P-000IAA

辰野心斎橋ビル

大阪府大阪市中央区南船場4-4-10

坪単価:お問い合せください

  • 募集面積:29.19 坪 / 96 m² 
  • 物件詳細
  • 物件概要
  • 所在地
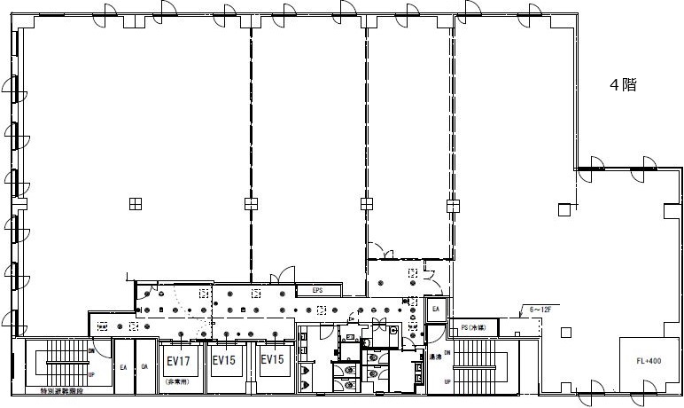
  • 平面図
  • お問い合わせ

物件詳細

辰野心斎橋ビルは、1992年竣工の大阪府大阪市中央区にある賃貸オフィスビルです。地上12階/地下2階建て、基準階面積は135.78坪、天井高は2,600mm、耐震構造です。最寄り駅は、OsakaMetro御堂筋線心斎橋駅から徒歩1分、OsakaMetro長堀鶴見緑地線心斎橋駅から徒歩1分、OsakaMetro四つ橋線四ツ橋駅から徒歩4分です。

募集区画

所在地

平面図

※基準階とは、多階層ビルにおいて基準となる平面を持つ階になります。

※このページに含まれる情報は、一般的な情報提供のみを目的としています。特に空室状況については現況が異なる場合があるため、詳細についてはお問い合わせ下さい。