立売堀1-2-23
立売堀1-2-23
オフィス
物件ID: JPN-P-00BLI0
新築・竣工予定
即入居可

リアライズ立売堀

大阪府大阪市西区立売堀1-2-23

24,001 円 - 27,000 円/坪から

  • 募集面積:19.79 - 50.2 坪 / 65 - 166 m² 
  • 物件概要
  • 所在地
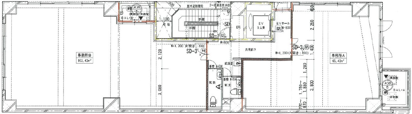
  • 平面図

募集区画

所在地

平面図

※基準階とは、多階層ビルにおいて基準となる平面を持つ階になります。

※このページに含まれる情報は、一般的な情報提供のみを目的としています。特に空室状況については現況が異なる場合があるため、詳細についてはお問い合わせ下さい。