天神1-13-6
天神1-13-6
天神1-13-6
天神1-13-6
オフィス
物件ID: JPN-P-001K04
即入居可

西鉄天神ビル

福岡県福岡市中央区天神1-13-6

坪単価:お問い合せください

  • 募集面積:22.53 - 77.26 坪 / 74 - 255 m² 
  • 物件詳細
  • 物件概要
  • 所在地
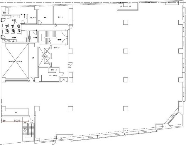
  • 平面図

物件詳細

西鉄天神ビルは、1982年竣工の福岡県福岡市中央区にある賃貸オフィスビルです。地上8階/地下1階建て、基準階面積は234.66坪、天井高は2,480mmです。最寄り駅は、福岡市営空港線天神駅から徒歩1分、西鉄天神大牟田線西鉄福岡(天神)駅から徒歩4分、福岡市営七隈線天神南駅から徒歩6分です。

募集区画

所在地

平面図

※基準階とは、多階層ビルにおいて基準となる平面を持つ階になります。

※このページに含まれる情報は、一般的な情報提供のみを目的としています。特に空室状況については現況が異なる場合があるため、詳細についてはお問い合わせ下さい。