博多駅前1-6-16
博多駅前1-6-16
博多駅前1-6-16
博多駅前1-6-16
オフィス
物件ID: JPN-P-001JJU

西鉄博多駅前ビル

福岡県福岡市博多区博多駅前1-6-16

坪単価:お問い合せください

  • 募集面積:21.98 - 22 坪 / 73 m² 
  • 物件詳細
  • 物件概要
  • 所在地
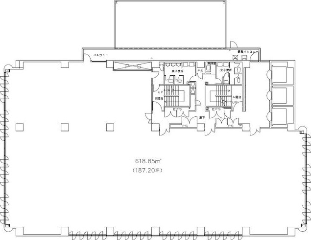
  • 平面図

物件詳細

西鉄博多駅前ビルは、1989年竣工の福岡県福岡市博多区にある賃貸オフィスビルです。地上12階建て、基準階面積は187.20坪、天井高は2,580mm、耐震構造です。最寄り駅は、福岡市営空港線祇園駅から徒歩2分、福岡市営七隈線櫛田神社前駅から徒歩7分、JR鹿児島本線(門司港-八代)博多駅から徒歩9分です。

募集区画

所在地

平面図

※基準階とは、多階層ビルにおいて基準となる平面を持つ階になります。

※このページに含まれる情報は、一般的な情報提供のみを目的としています。特に空室状況については現況が異なる場合があるため、詳細についてはお問い合わせ下さい。