新潟センター
新潟センター
倉庫
物件ID: JPN-P-0035T4
高床式
IC5km以内
即入居可

新潟センター

新潟県新潟市南区

坪単価:お問い合せください

  • 募集面積:123 - 3,412 坪 / 407 - 11,279 m² 
  • 物件詳細
  • 物件概要
  • 所在地
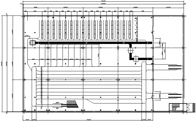
  • 平面図

物件詳細

新潟センターは、新潟県新潟市南区にある、物流施設、貸し倉庫等の賃貸物流物件です。地上4階建て、延床面積は3,732坪(12,337.19㎡)、天井高2,500mmです。最寄り駅は、JR信越本線(長岡-新潟)さつき野駅から徒歩110分です。最寄りICは、北陸自動車道黒埼スマートICから約4.7km、北陸自動車道新潟西ICから約8.7kmです。

募集区画

所在地

平面図

このページに含まれる情報は、一般的な情報提供のみを目的としています。特に空室状況については現況が異なる場合があるため、詳細についてはお問い合わせ下さい。

※賃貸条件や建物設備は変更する可能性があるため、ご契約内容の詳細についてはお問い合わせ下さい。