難波2-3-7
難波2-3-7
難波2-3-7
難波2-3-7
難波2-3-7
難波2-3-7
オフィス
物件ID: JPN-P-000EOL

難波御堂筋ウエスト

大阪府大阪市中央区難波2-3-7

22,000 円/坪から

  • 募集面積:98.56 坪 / 326 m² 
  • 物件詳細
  • 物件概要
  • 所在地
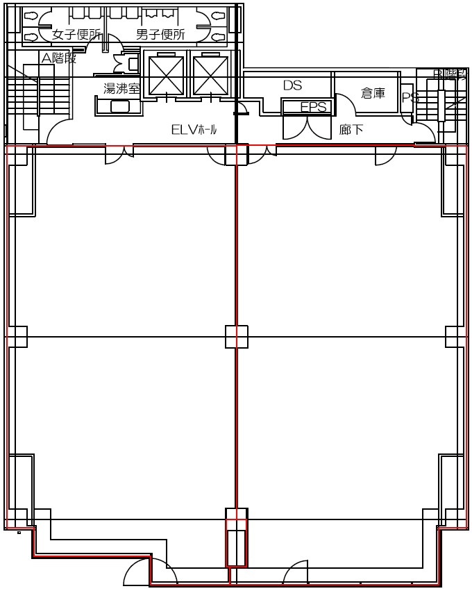
  • 平面図
  • お問い合わせ

物件詳細

難波御堂筋ウエストは、1985年竣工の大阪府大阪市中央区にある賃貸オフィスビルです。地上11階/地下2階建て、基準階面積は131.68坪、天井高は2,400mm、OAフロアあり、耐震構造です。最寄り駅は、近鉄難波線大阪難波駅から徒歩1分、阪神なんば線大阪難波駅から徒歩1分、OsakaMetro御堂筋線なんば駅から徒歩1分です。

募集区画

所在地

平面図

※基準階とは、多階層ビルにおいて基準となる平面を持つ階になります。

※このページに含まれる情報は、一般的な情報提供のみを目的としています。特に空室状況については現況が異なる場合があるため、詳細についてはお問い合わせ下さい。