安政町8-16
安政町8-16
安政町8-16
安政町8-16
安政町8-16
安政町8-16
オフィス
物件ID: JPN-P-001OTG

村瀬海運ビル

熊本県熊本市中央区安政町8-16

7,900 円/坪から

  • 募集面積:20.9 - 35.51 坪 / 69 - 117 m² 
  • 物件詳細
  • 物件概要
  • 所在地
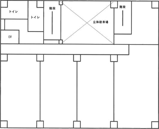
  • 平面図
  • お問い合わせ

物件詳細

村瀬海運ビルは、1986年竣工の熊本県熊本市中央区にある賃貸オフィスビルです。地上8階建て、基準階面積は67.56坪、OAフロアあり、耐震構造です。最寄り駅は、熊本市電A系統水道町駅から徒歩3分、熊本市電A系統通町筋駅から徒歩6分、熊本市電A系統九品寺交差点駅から徒歩7分です。

募集区画

所在地

平面図

※基準階とは、多階層ビルにおいて基準となる平面を持つ階になります。

※このページに含まれる情報は、一般的な情報提供のみを目的としています。特に空室状況については現況が異なる場合があるため、詳細についてはお問い合わせ下さい。