錦1-10-1
錦1-10-1
オフィス
物件ID: JPN-P-001G6Z
居抜

MIテラス名古屋伏見

愛知県名古屋市中区錦1-10-1

坪単価:お問い合せください

  • 募集面積:124.95 坪 / 413 m² 
  • 物件詳細
  • 物件概要
  • 所在地
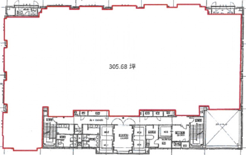
  • 平面図

物件詳細

MIテラス名古屋伏見は、1993年竣工の愛知県名古屋市中区にある賃貸オフィスビルです。地上12階建て、基準階面積は305.68坪、耐震構造です。最寄り駅は、名古屋市営鶴舞線伏見駅から徒歩3分、名古屋市営東山線伏見駅から徒歩3分、名古屋市営桜通線丸の内駅から徒歩5分です。

募集区画

所在地

平面図

※基準階とは、多階層ビルにおいて基準となる平面を持つ階になります。

※このページに含まれる情報は、一般的な情報提供のみを目的としています。特に空室状況については現況が異なる場合があるため、詳細についてはお問い合わせ下さい。