オフィス
物件ID: JPN-P-003WXD

メイフィス金山西ビル

愛知県名古屋市中区正木3-9-27

坪単価:お問い合せください

  • 募集面積:65.56 坪 / 217 m² 
  • 物件詳細
  • 物件概要
  • 所在地
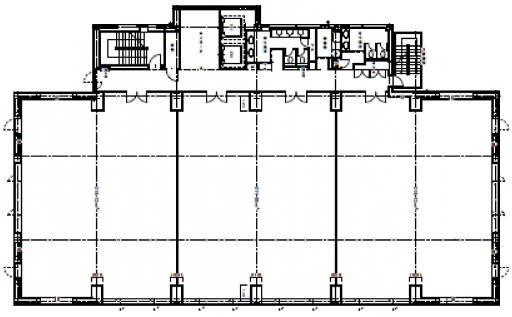
  • 平面図

物件詳細

メイフィス金山西ビルは、2000年竣工の愛知県名古屋市中区にある賃貸オフィスビルです。地上5階建て、基準階面積は185.00坪、耐震構造です。最寄り駅は、JR東海道本線(熱海-米原)尾頭橋駅から徒歩10分です。

募集区画

所在地

平面図

※基準階とは、多階層ビルにおいて基準となる平面を持つ階になります。

※このページに含まれる情報は、一般的な情報提供のみを目的としています。特に空室状況については現況が異なる場合があるため、詳細についてはお問い合わせ下さい。