【貸地】富士市今井交差点土地
坪単価:お問い合せください
JP
お電話
お問合せ
オフィス・事務所
倉庫・物流センター
地図検索
記事
仲介会社様はこちらへ
お気に入り
JP
お電話
お問合せ
倉庫
物件ID:
JPN-P-00BLCN
2 図面
【貸地】富士市今井交差点土地
静岡県富士市
坪単価:お問い合せください
お問い合わせ
お電話
共有する
物件概要
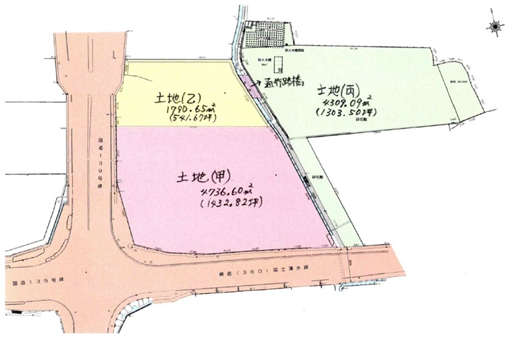
所在地
平面図
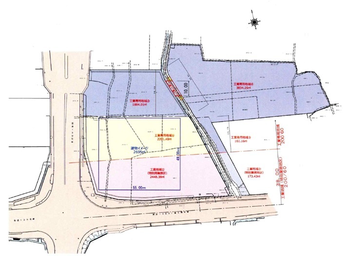
募集区画
所在地
平面図
倉庫
静岡県
富士市
【貸地】富士市今井交差点土地