道修町3-6-1
道修町3-6-1
道修町3-6-1
道修町3-6-1
道修町3-6-1
オフィス
物件ID: JPN-P-00097L

京阪神御堂筋ビル

大阪府大阪市中央区道修町3-6-1

坪単価:お問い合せください

  • 募集面積:200.67 坪 / 663 m² 
  • 物件詳細
  • 物件概要
  • 所在地
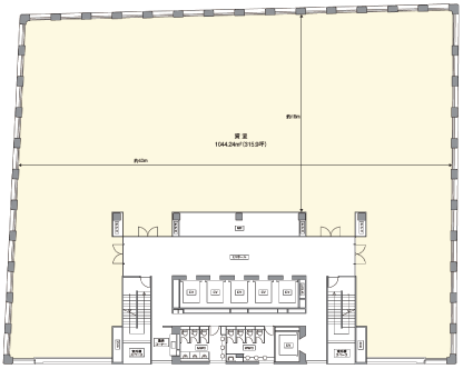
  • 平面図
  • お問い合わせ

物件詳細

京阪神御堂筋ビルは、2007年竣工の大阪府大阪市中央区にある賃貸オフィスビルです。地上14階/地下1階建て、基準階面積は315.93坪、天井高は2,800mm、OAフロアあり、耐震構造は免震です。最寄り駅は、京阪本線淀屋橋駅から徒歩2分、OsakaMetro御堂筋線淀屋橋駅から徒歩2分、OsakaMetro御堂筋線本町駅から徒歩7分です。

募集区画

所在地

平面図

※基準階とは、多階層ビルにおいて基準となる平面を持つ階になります。

※このページに含まれる情報は、一般的な情報提供のみを目的としています。特に空室状況については現況が異なる場合があるため、詳細についてはお問い合わせ下さい。