白南風町1-13
オフィス
物件ID: JPN-P-00BLT6

JR九州佐世保ビル

長崎県佐世保市白南風町1-13

坪単価:お問い合せください

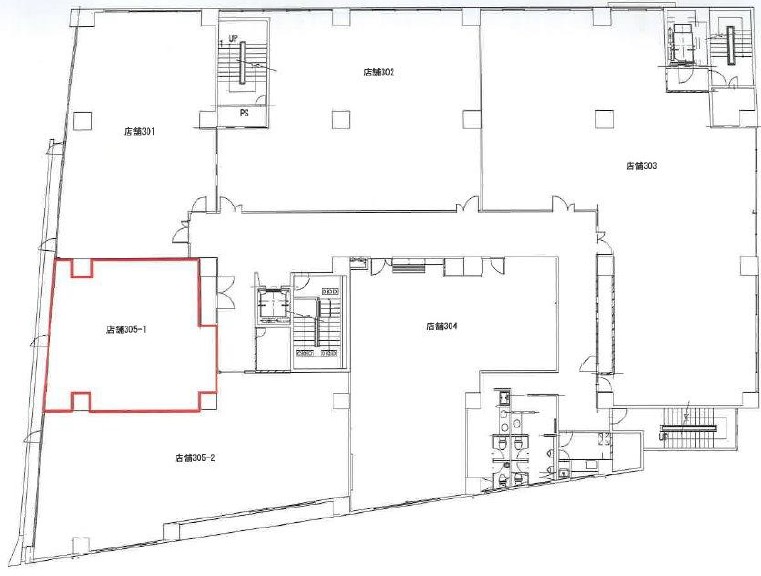
  • 募集面積:22.22 坪 / 73 m² 
  • 物件概要
  • 所在地
  • 平面図

募集区画

所在地

平面図

※基準階とは、多階層ビルにおいて基準となる平面を持つ階になります。

※このページに含まれる情報は、一般的な情報提供のみを目的としています。特に空室状況については現況が異なる場合があるため、詳細についてはお問い合わせ下さい。