浜大津1-2-20
オフィス
物件ID: JPN-P-00BM2Z
新築・竣工予定
即入居可

GATO浜大津

滋賀県大津市浜大津1-2-20

坪単価:お問い合せください

  • 募集面積:57.98 - 89.85 坪 / 192 - 297 m² 
  • 物件概要
  • 所在地
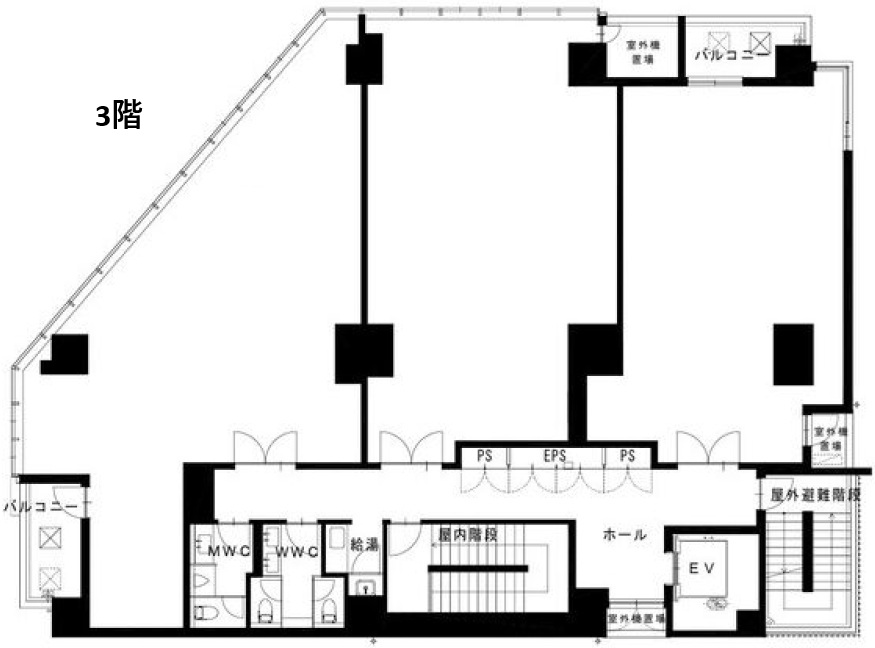
  • 平面図

募集区画

所在地

平面図

※基準階とは、多階層ビルにおいて基準となる平面を持つ階になります。

※このページに含まれる情報は、一般的な情報提供のみを目的としています。特に空室状況については現況が異なる場合があるため、詳細についてはお問い合わせ下さい。