南一条西8-1-1
南一条西8-1-1
オフィス
物件ID: JPN-P-0003XZ

クリスタルタワー(札幌)

北海道札幌市中央区南一条西8-1-1

15,000 円/坪から

  • 募集面積:100.23 坪 / 331 m² 
  • 物件詳細
  • 物件概要
  • 所在地
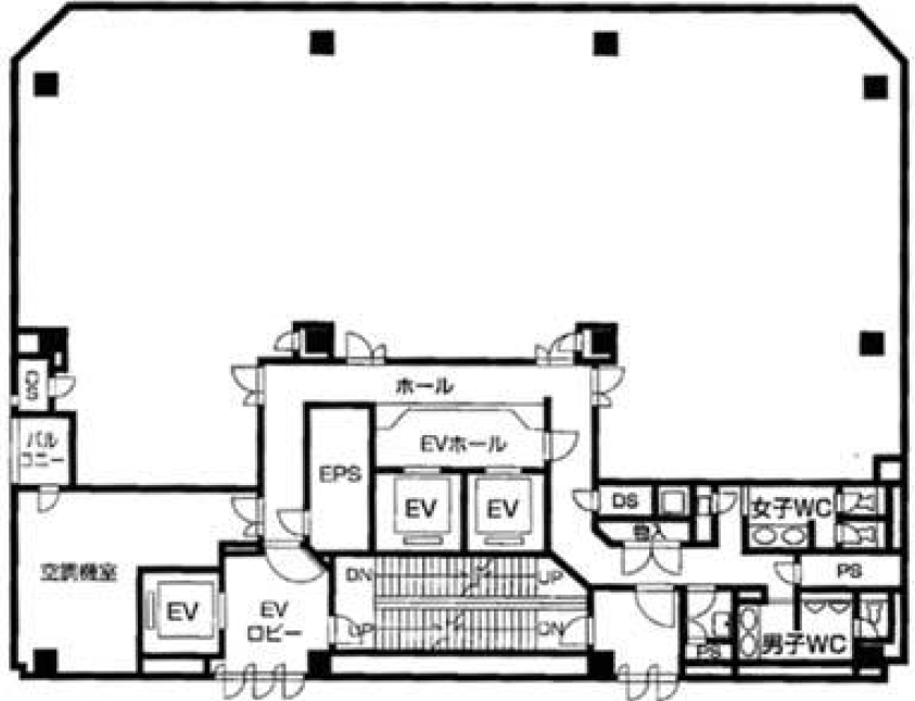
  • 平面図

物件詳細

クリスタルタワー(札幌)は、1993年竣工の北海道札幌市中央区にある賃貸オフィスビルです。地上15階/地下1階建て、基準階面積は100.25坪、天井高は2,550mm、耐震構造です。最寄り駅は、札幌市電山鼻線西8丁目駅から徒歩1分、札幌市電山鼻線中央区役所前駅から徒歩5分、札幌市営東西線大通駅から徒歩6分です。

募集区画

所在地

平面図

※基準階とは、多階層ビルにおいて基準となる平面を持つ階になります。

※このページに含まれる情報は、一般的な情報提供のみを目的としています。特に空室状況については現況が異なる場合があるため、詳細についてはお問い合わせ下さい。