
オフィス
物件ID: JPN-P-0001TL朝日生命岡山柳町ビル
岡山県岡山市北区柳町2-6-25
坪単価:お問い合せください
- 募集面積:19.81 坪 / 65 m²
- 物件詳細
- 物件概要
- 所在地
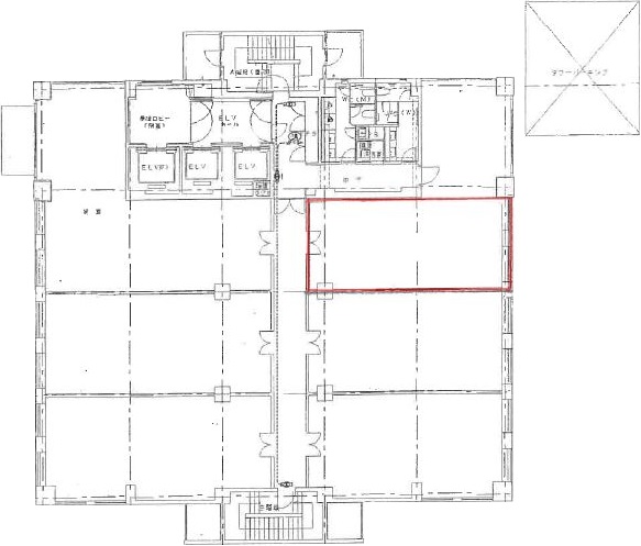
- 平面図
※基準階とは、多階層ビルにおいて基準となる平面を持つ階になります。
※このページに含まれる情報は、一般的な情報提供のみを目的としています。特に空室状況については現況が異なる場合があるため、詳細についてはお問い合わせ下さい。

岡山県岡山市北区柳町2-6-25
坪単価:お問い合せください
※基準階とは、多階層ビルにおいて基準となる平面を持つ階になります。
※このページに含まれる情報は、一般的な情報提供のみを目的としています。特に空室状況については現況が異なる場合があるため、詳細についてはお問い合わせ下さい。