
オフィス
物件ID: JPN-P-0076PK新築・竣工予定
(仮)ADC BLD.MARUNOUCHI新築工事
愛知県名古屋市中区丸の内2(未定)
坪単価:お問い合せください
- 募集面積:24.58 - 158.1 坪 / 81 - 523 m²
- 物件詳細
- 物件概要
- 所在地
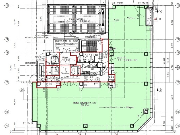
- 平面図
- お問い合わせ
※基準階とは、多階層ビルにおいて基準となる平面を持つ階になります。
※このページに含まれる情報は、一般的な情報提供のみを目的としています。特に空室状況については現況が異なる場合があるため、詳細についてはお問い合わせ下さい。