神田神保町2-20-13
神田神保町2-20-13
オフィス
物件ID: JPN-P-000KVV
即入居可

Y’S CORAL BUILD

東京都千代田区神田神保町2-20-13

16,248 円/坪から

  • 募集面積:21.54 - 43.08 坪 / 71 - 142 m² 
  • 物件詳細
  • 物件概要
  • 所在地
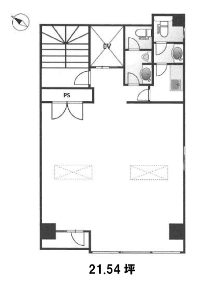
  • 平面図

物件詳細

Y’S CORAL BUILDは、1989年竣工の東京都千代田区にある賃貸オフィスビルです。地上7階建て、基準階面積は21.54坪、天井高は2,450mm、耐震構造です。最寄り駅は、JR中央本線(東京-塩尻)水道橋駅から徒歩4分、都営三田線水道橋駅から徒歩4分、東京メトロ東西線九段下駅から徒歩8分です。

募集区画

所在地

平面図

※基準階とは、多階層ビルにおいて基準となる平面を持つ階になります。

※このページに含まれる情報は、一般的な情報提供のみを目的としています。特に空室状況については現況が異なる場合があるため、詳細についてはお問い合わせ下さい。