月島1-2-13
月島1-2-13
月島1-2-13
月島1-2-13
オフィス
物件ID: JPN-P-000L8G
即入居可

ワイズビルディング

東京都中央区月島1-2-13

坪単価:お問い合せください

  • 募集面積:102.19 坪 / 338 m² 
  • 物件詳細
  • 物件概要
  • 所在地
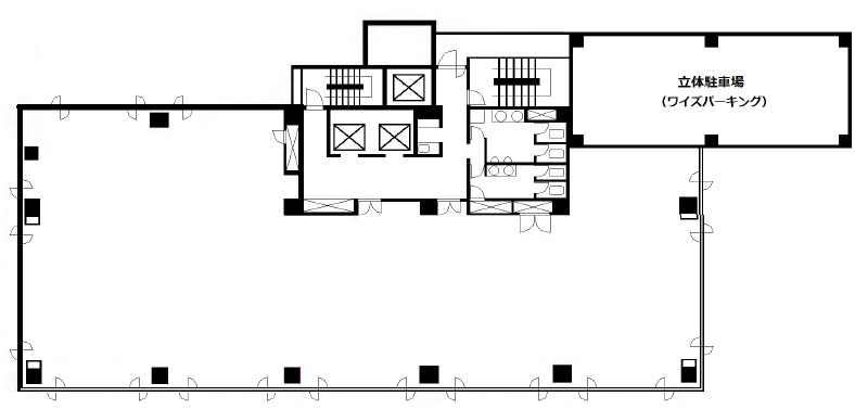
  • 平面図

物件詳細

ワイズビルディングは、1992年竣工の東京都中央区にある賃貸オフィスビルです。地上8階建て、基準階面積は177.56坪、天井高は2,350mm、OAフロアあり、耐震構造です。最寄り駅は、東京メトロ有楽町線月島駅から徒歩2分、都営大江戸線(環状部)月島駅から徒歩2分、東京メトロ有楽町線新富町駅から徒歩13分です。

募集区画

所在地

平面図

※基準階とは、多階層ビルにおいて基準となる平面を持つ階になります。

※このページに含まれる情報は、一般的な情報提供のみを目的としています。特に空室状況については現況が異なる場合があるため、詳細についてはお問い合わせ下さい。