代々木3-1-2
代々木3-1-2
オフィス
物件ID: JPN-P-000T1E
即入居可

代々木スクエア

東京都渋谷区代々木3-1-2

15,895 円/坪から

  • 募集面積:29.47 坪 / 97 m² 
  • 物件詳細
  • 物件概要
  • 所在地
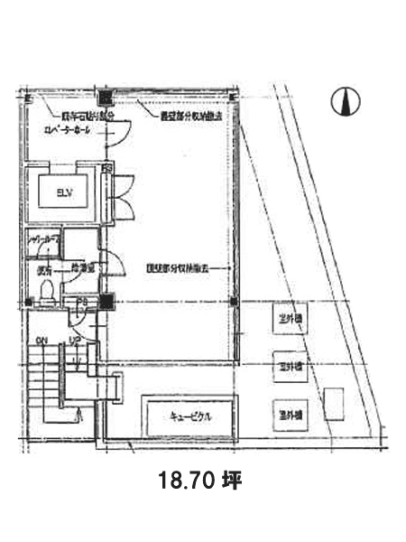
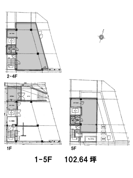
  • 平面図

物件詳細

代々木スクエアは、1991年竣工の東京都渋谷区にある賃貸物件です。地上5階建て、基準階面積は28.00坪、天井高は2,450mmです。最寄り駅は、JR埼京線新宿駅から徒歩5分、JR山手線新宿駅から徒歩5分、JR中央本線(東京-塩尻)新宿駅から徒歩5分です。

募集区画

所在地

平面図

※基準階とは、多階層ビルにおいて基準となる平面を持つ階になります。

※このページに含まれる情報は、一般的な情報提供のみを目的としています。特に空室状況については現況が異なる場合があるため、詳細についてはお問い合わせ下さい。