オフィス
物件ID: JPN-P-003WHX

(仮)横浜ビジネスパーク(YBP)新ラボ棟PJ

神奈川県横浜市保土ケ谷区神戸町134

坪単価:お問い合せください

  • 募集面積:582.23 - 1,385.66 坪 / 1,925 - 4,581 m² 
  • 物件詳細
  • 物件概要
  • 所在地
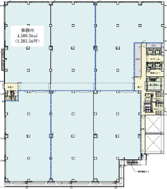
  • 平面図
  • お問い合わせ

物件詳細

(仮)横浜ビジネスパーク(YBP)新ラボ棟PJは、2027年竣工の神奈川県横浜市保土ケ谷区にある賃貸物件です。地上7階建て、基準階面積は1385.56坪、耐震構造です。最寄り駅は、相鉄本線天王町駅から徒歩7分、相鉄本線星川駅から徒歩11分、JR横須賀線保土ヶ谷駅から徒歩12分です。

募集区画

所在地

平面図

※基準階とは、多階層ビルにおいて基準となる平面を持つ階になります。

※このページに含まれる情報は、一般的な情報提供のみを目的としています。特に空室状況については現況が異なる場合があるため、詳細についてはお問い合わせ下さい。