今橋4-3-22
今橋4-3-22
今橋4-3-22
今橋4-3-22
今橋4-3-22
オフィス
物件ID: JPN-P-000L4V

淀屋橋山本ビル

大阪府大阪市中央区今橋4-3-22

坪単価:お問い合せください

  • 募集面積:36.52 坪 / 121 m² 
  • 物件詳細
  • 物件概要
  • 所在地
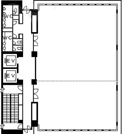
  • 平面図
  • お問い合わせ

物件詳細

淀屋橋山本ビルは、2005年竣工の大阪府大阪市中央区にある賃貸オフィスビルです。地上12階/地下1階建て、基準階面積は60.80坪、天井高は3,250mm、耐震構造です。最寄り駅は、京阪本線淀屋橋駅から徒歩2分、OsakaMetro御堂筋線淀屋橋駅から徒歩2分、OsakaMetro四つ橋線肥後橋駅から徒歩5分です。

所在地

平面図

※基準階とは、多階層ビルにおいて基準となる平面を持つ階になります。

※このページに含まれる情報は、一般的な情報提供のみを目的としています。特に空室状況については現況が異なる場合があるため、詳細についてはお問い合わせ下さい。