四谷坂町12-22
四谷坂町12-22
四谷坂町12-22
四谷坂町12-22
オフィス
物件ID: JPN-P-00081M
即入居可

VORT四谷坂町

東京都新宿区四谷坂町12-22

坪単価:お問い合せください

  • 募集面積:101.89 坪 / 337 m² 
  • 物件詳細
  • 物件概要
  • 所在地
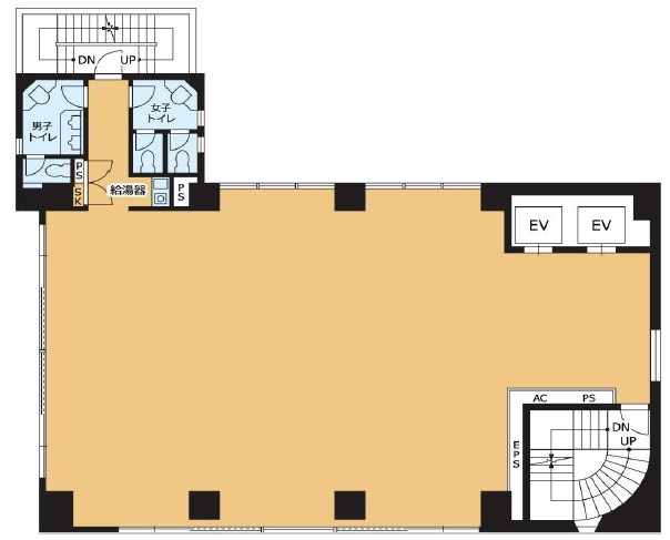
  • 平面図
  • お問い合わせ

物件詳細

VORT四谷坂町は、1987年竣工の東京都新宿区にある賃貸オフィスビルです。地上8階建て、基準階面積は59.48坪、天井高は2,600mm、耐震構造です。最寄り駅は、都営新宿線曙橋駅から徒歩6分、JR中央本線(東京-塩尻)四ツ谷駅から徒歩10分、東京メトロ丸ノ内線四ツ谷駅から徒歩10分です。

募集区画

所在地

平面図

※基準階とは、多階層ビルにおいて基準となる平面を持つ階になります。

※このページに含まれる情報は、一般的な情報提供のみを目的としています。特に空室状況については現況が異なる場合があるため、詳細についてはお問い合わせ下さい。