恵比寿1-21-8
恵比寿1-21-8
オフィス
物件ID: JPN-P-00033E
居抜
即入居可

VORT恵比寿III

東京都渋谷区恵比寿1-21-8

29,700 円/坪から

  • 募集面積:57.38 坪 / 190 m² 
  • 物件詳細
  • 物件概要
  • 所在地
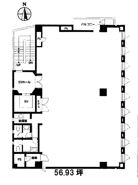
  • 平面図

物件詳細

VORT恵比寿IIIは、1993年竣工の東京都渋谷区にある賃貸オフィスビルです。地上9階/地下2階建て、基準階面積は57.47坪、天井高は2,450mm、耐震構造です。最寄り駅は、JR埼京線恵比寿駅から徒歩8分、JR山手線恵比寿駅から徒歩8分、JR湘南新宿ライン恵比寿駅から徒歩8分です。

募集区画

所在地

平面図

※基準階とは、多階層ビルにおいて基準となる平面を持つ階になります。

※このページに含まれる情報は、一般的な情報提供のみを目的としています。特に空室状況については現況が異なる場合があるため、詳細についてはお問い合わせ下さい。