オフィス
物件ID: JPN-P-003I9U新築・竣工予定
(仮)都市再生ステップアップ・プロジェクト(渋谷地区)渋谷一丁目地区共同開発事業
東京都渋谷区渋谷1-18-3他(地番)
坪単価:お問い合せください
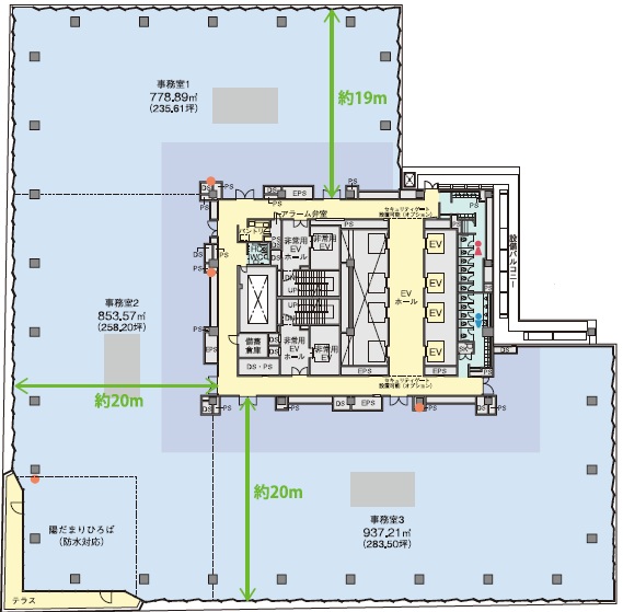
- 募集面積:776.76 - 777.11 坪 / 2,568 - 2,569 m²
- 物件詳細
- 物件概要
- 所在地
- 平面図
※基準階とは、多階層ビルにおいて基準となる平面を持つ階になります。
※このページに含まれる情報は、一般的な情報提供のみを目的としています。特に空室状況については現況が異なる場合があるため、詳細についてはお問い合わせ下さい。


