高田馬場3-3-1
高田馬場3-3-1
高田馬場3-3-1
高田馬場3-3-1
オフィス
物件ID: JPN-P-000R4R
即入居可

ユニオン駅前ビル

東京都新宿区高田馬場3-3-1

20,698 円/坪から

  • 募集面積:21.74 坪 / 72 m² 
  • 物件詳細
  • 物件概要
  • 所在地
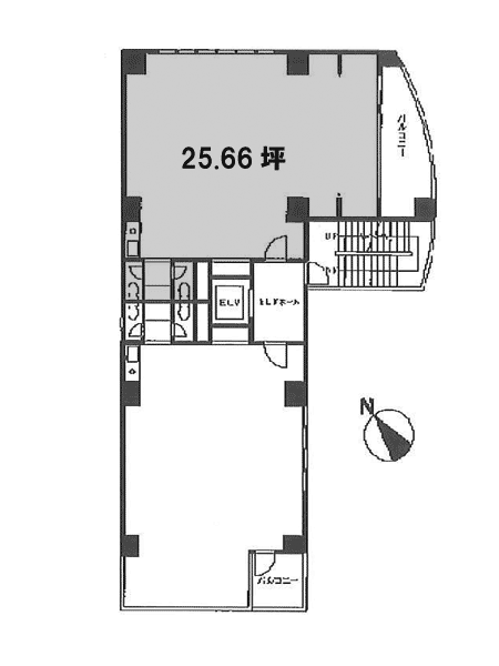
  • 平面図

物件詳細

ユニオン駅前ビルは、1994年竣工の東京都新宿区にある賃貸オフィスビルです。地上9階建て、基準階面積は50.70坪、天井高は2,400mm、耐震構造です。最寄り駅は、西武新宿線下落合駅から徒歩8分、JR山手線高田馬場駅から徒歩9分、西武新宿線高田馬場駅から徒歩9分です。

募集区画

所在地

平面図

※基準階とは、多階層ビルにおいて基準となる平面を持つ階になります。

※このページに含まれる情報は、一般的な情報提供のみを目的としています。特に空室状況については現況が異なる場合があるため、詳細についてはお問い合わせ下さい。