上野1-18-1
上野1-18-1
上野1-18-1
上野1-18-1
オフィス
物件ID: JPN-P-000S8R
即入居可

上野TSビル

東京都台東区上野1-18-1

16,000 円/坪から

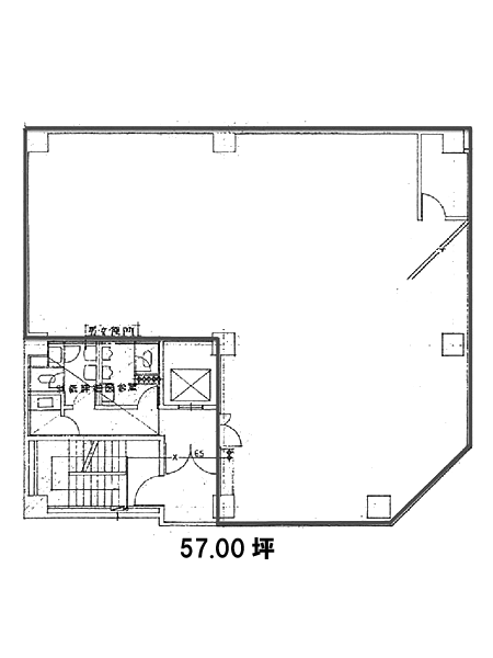
  • 募集面積:57 坪 / 188 m² 
  • 物件詳細
  • 物件概要
  • 所在地
  • 平面図

物件詳細

上野TSビルは、1976年竣工の東京都台東区にある賃貸オフィスビルです。地上9階/地下1階建て、基準階面積は57.00坪、天井高は2,500mmです。最寄り駅は、東京メトロ千代田線湯島駅から徒歩3分、東京メトロ銀座線上野広小路駅から徒歩8分、都営大江戸線(環状部)上野御徒町駅から徒歩8分です。

募集区画

所在地

平面図

※基準階とは、多階層ビルにおいて基準となる平面を持つ階になります。

※このページに含まれる情報は、一般的な情報提供のみを目的としています。特に空室状況については現況が異なる場合があるため、詳細についてはお問い合わせ下さい。