東日本橋2-24-7
東日本橋2-24-7
東日本橋2-24-7
東日本橋2-24-7
東日本橋2-24-7
東日本橋2-24-7
東日本橋2-24-7
東日本橋2-24-7
東日本橋2-24-7
東日本橋2-24-7
東日本橋2-24-7
東日本橋2-24-7
オフィス
物件ID: JPN-P-000Y8A
即入居可

東京プラスチック会館

東京都中央区東日本橋2-24-7

13,546 円/坪から

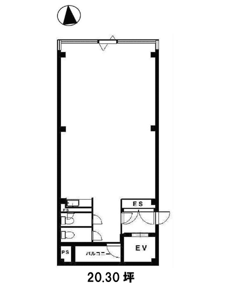
  • 募集面積:20.3 坪 / 67 m² 
  • 物件詳細
  • 物件概要
  • 所在地
  • 平面図
  • お問い合わせ

物件詳細

東京プラスチック会館は、1989年竣工の東京都中央区にある賃貸オフィスビルです。地上9階建て、基準階面積は20.00坪、天井高は2,450mmです。最寄り駅は、JR総武本線(東京-銚子)馬喰町駅から徒歩2分、都営浅草線東日本橋駅から徒歩4分、JR総武線各停(御茶ノ水-錦糸町)浅草橋駅から徒歩6分です。

募集区画

所在地

平面図

※基準階とは、多階層ビルにおいて基準となる平面を持つ階になります。

※このページに含まれる情報は、一般的な情報提供のみを目的としています。特に空室状況については現況が異なる場合があるため、詳細についてはお問い合わせ下さい。