
オフィス
物件ID: JPN-P-000WTV所沢第一生命ビルディング
埼玉県所沢市日吉町15-14
坪単価:お問い合せください
- 募集面積:64.15 - 114.06 坪 / 212 - 377 m²
- 物件詳細
- 物件概要
- 所在地
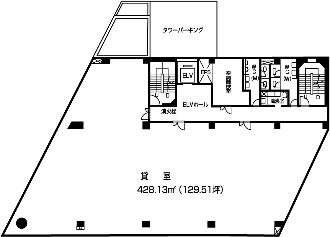
- 平面図
- お問い合わせ
※基準階とは、多階層ビルにおいて基準となる平面を持つ階になります。
※このページに含まれる情報は、一般的な情報提供のみを目的としています。特に空室状況については現況が異なる場合があるため、詳細についてはお問い合わせ下さい。

埼玉県所沢市日吉町15-14
坪単価:お問い合せください
※基準階とは、多階層ビルにおいて基準となる平面を持つ階になります。
※このページに含まれる情報は、一般的な情報提供のみを目的としています。特に空室状況については現況が異なる場合があるため、詳細についてはお問い合わせ下さい。