日本橋本町4-3-4
日本橋本町4-3-4
日本橋本町4-3-4
オフィス
物件ID: JPN-P-000J5A

東海日本橋ビル

東京都中央区日本橋本町4-3-4

16,995 円/坪から

  • 募集面積:36.84 坪 / 122 m² 
  • 物件詳細
  • 物件概要
  • 所在地
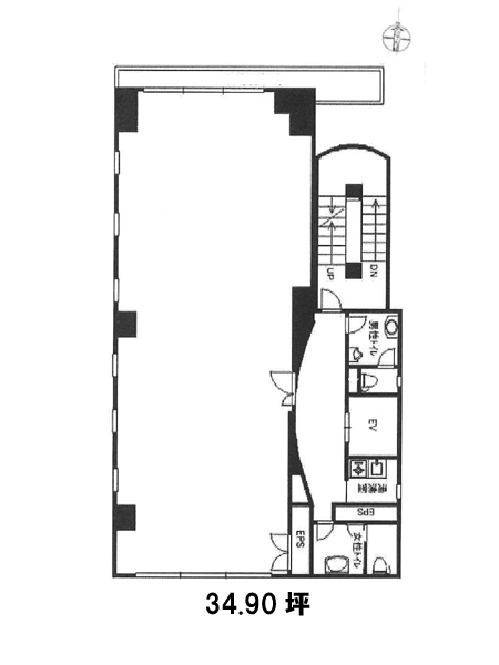
  • 平面図
  • お問い合わせ

物件詳細

東海日本橋ビルは、1989年竣工の東京都中央区にある賃貸オフィスビルです。地上8階/地下1階建て、基準階面積は36.83坪、天井高は2,500mm、耐震構造です。最寄り駅は、JR総武本線(東京-銚子)新日本橋駅から徒歩3分、東京メトロ銀座線三越前駅から徒歩4分、JR京浜東北線神田駅から徒歩5分です。

募集区画

所在地

平面図

※基準階とは、多階層ビルにおいて基準となる平面を持つ階になります。

※このページに含まれる情報は、一般的な情報提供のみを目的としています。特に空室状況については現況が異なる場合があるため、詳細についてはお問い合わせ下さい。