外神田2-10-7
外神田2-10-7
外神田2-10-7
外神田2-10-7
外神田2-10-7
外神田2-10-7
外神田2-10-7
外神田2-10-7
外神田2-10-7
オフィス
物件ID: JPN-P-000I21

T・Iビル

東京都千代田区外神田2-10-7

13,650 円/坪から

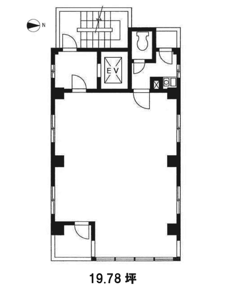
  • 募集面積:19.78 坪 / 65 m² 
  • 物件詳細
  • 物件概要
  • 所在地
  • 平面図

物件詳細

T・Iビルは、1992年竣工の東京都千代田区にある賃貸オフィスビルです。地上9階建てです。最寄り駅は、東京メトロ銀座線末広町駅から徒歩5分、東京メトロ千代田線湯島駅から徒歩7分、JR京浜東北線秋葉原駅から徒歩9分です。

募集区画

所在地

平面図

※基準階とは、多階層ビルにおいて基準となる平面を持つ階になります。

※このページに含まれる情報は、一般的な情報提供のみを目的としています。特に空室状況については現況が異なる場合があるため、詳細についてはお問い合わせ下さい。