磯辺通4-2-8
磯辺通4-2-8
磯辺通4-2-8
磯辺通4-2-8
磯辺通4-2-8
オフィス
物件ID: JPN-P-001Z8O

田嶋ビル

兵庫県神戸市中央区磯辺通4-2-8

17,000 円/坪から

  • 募集面積:25.79 坪 / 85 m² 
  • 物件詳細
  • 物件概要
  • 所在地
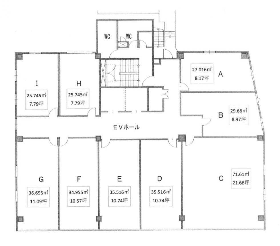
  • 平面図

物件詳細

田嶋ビルは、1977年竣工の兵庫県神戸市中央区にある賃貸オフィスビルです。地上10階/地下1階建てです。最寄り駅は、神戸市営海岸線三宮・花時計前駅から徒歩1分、阪神本線神戸三宮駅から徒歩3分、JR東海道本線(米原-神戸)三ノ宮駅から徒歩4分です。

募集区画

所在地

平面図

※基準階とは、多階層ビルにおいて基準となる平面を持つ階になります。

※このページに含まれる情報は、一般的な情報提供のみを目的としています。特に空室状況については現況が異なる場合があるため、詳細についてはお問い合わせ下さい。