虎ノ門2-5-4
虎ノ門2-5-4
虎ノ門2-5-4
虎ノ門2-5-4
オフィス
物件ID: JPN-P-000HLG

末広ビル

東京都港区虎ノ門2-5-4

23,000 円/坪から

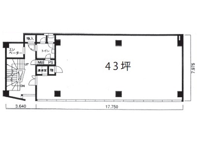
  • 募集面積:43 坪 / 142 m² 
  • 物件詳細
  • 物件概要
  • 所在地
  • 平面図
  • お問い合わせ

物件詳細

末広ビルは、1971年竣工の東京都港区にある賃貸オフィスビルです。地上8階/地下1階建て、基準階面積は43.00坪、天井高は2,500mm、OAフロアありです。最寄り駅は、東京メトロ銀座線虎ノ門駅から徒歩2分、東京メトロ日比谷線虎ノ門ヒルズ駅から徒歩2分、東京メトロ丸ノ内線霞ヶ関駅から徒歩7分です。

所在地

平面図

※基準階とは、多階層ビルにおいて基準となる平面を持つ階になります。

※このページに含まれる情報は、一般的な情報提供のみを目的としています。特に空室状況については現況が異なる場合があるため、詳細についてはお問い合わせ下さい。