芝公園1-2-4
芝公園1-2-4
芝公園1-2-4
芝公園1-2-4
オフィス
物件ID: JPN-P-000HGM

エス・ティビル

東京都港区芝公園1-2-4

坪単価:お問い合せください

  • 募集面積:69.08 - 69.98 坪 / 228 - 231 m² 
  • 物件詳細
  • 物件概要
  • 所在地
  • 平面図
  • お問い合わせ

物件詳細

エス・ティビルは、1992年竣工の東京都港区にある賃貸オフィスビルです。地上9階/地下2階建て、基準階面積は69.98坪、天井高は2,580mm、OAフロアあり、耐震構造です。最寄り駅は、都営三田線御成門駅から徒歩6分、東京メトロ日比谷線神谷町駅から徒歩7分、東京メトロ日比谷線虎ノ門ヒルズ駅から徒歩8分です。

募集区画

所在地

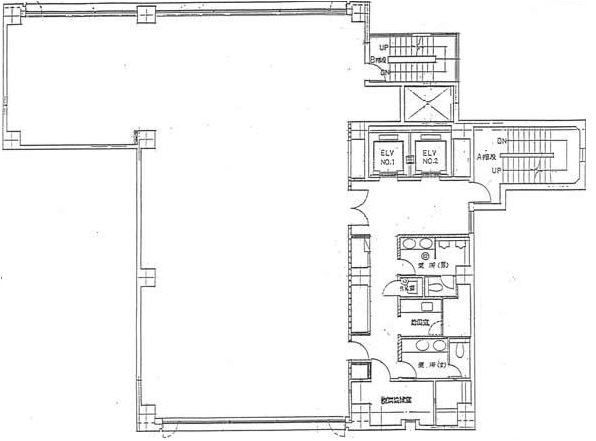
平面図

※基準階とは、多階層ビルにおいて基準となる平面を持つ階になります。

※このページに含まれる情報は、一般的な情報提供のみを目的としています。特に空室状況については現況が異なる場合があるため、詳細についてはお問い合わせ下さい。