
オフィス
物件ID: JPN-P-001BD4佐賀新聞佐賀駅前ビル
佐賀県佐賀市駅前中央1-9-38
10,317 円/坪から
- 募集面積:23.66 坪 / 78 m²
- 物件詳細
- 物件概要
- 所在地
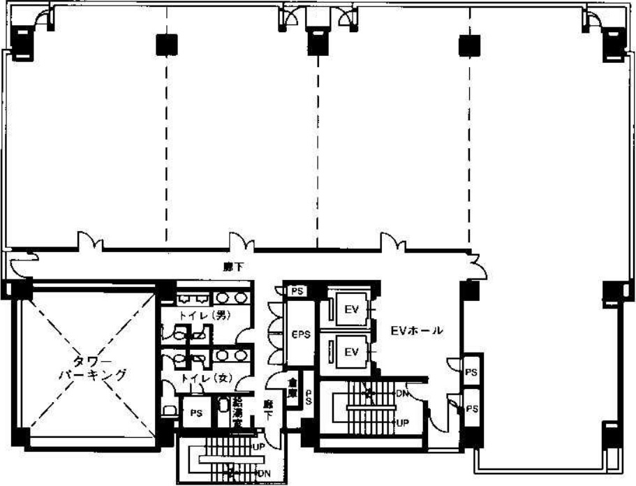
- 平面図
- お問い合わせ
※基準階とは、多階層ビルにおいて基準となる平面を持つ階になります。
※このページに含まれる情報は、一般的な情報提供のみを目的としています。特に空室状況については現況が異なる場合があるため、詳細についてはお問い合わせ下さい。

佐賀県佐賀市駅前中央1-9-38
10,317 円/坪から
※基準階とは、多階層ビルにおいて基準となる平面を持つ階になります。
※このページに含まれる情報は、一般的な情報提供のみを目的としています。特に空室状況については現況が異なる場合があるため、詳細についてはお問い合わせ下さい。