
オフィス
物件ID: JPN-P-001M13即入居可
SNT八丁堀ビル
東京都中央区新川2-8-8
21,910 円/坪から
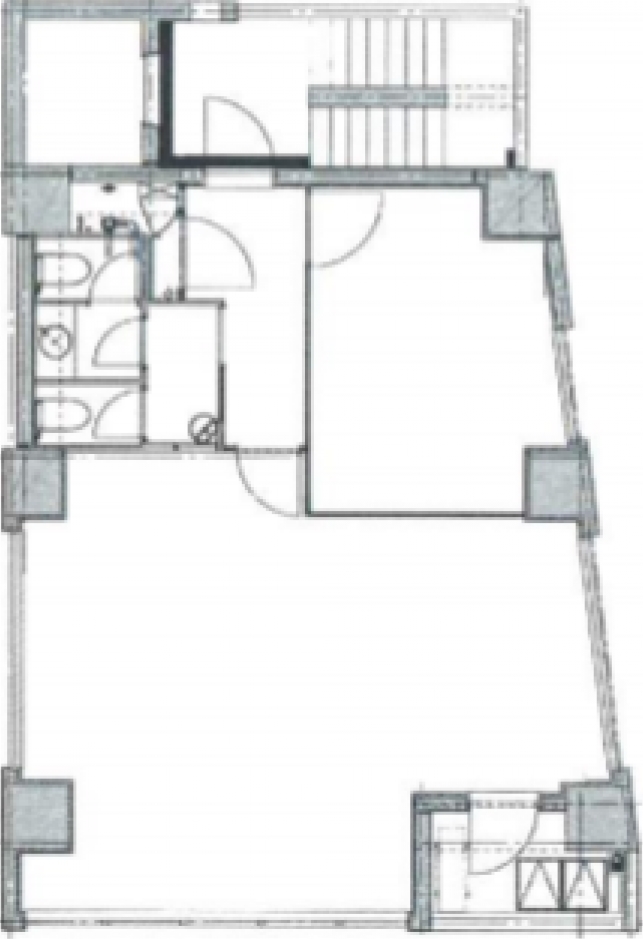
- 募集面積:19.99 坪 / 66 m²
- 物件詳細
- 物件概要
- 所在地
- 平面図
※基準階とは、多階層ビルにおいて基準となる平面を持つ階になります。
※このページに含まれる情報は、一般的な情報提供のみを目的としています。特に空室状況については現況が異なる場合があるため、詳細についてはお問い合わせ下さい。

東京都中央区新川2-8-8
21,910 円/坪から
※基準階とは、多階層ビルにおいて基準となる平面を持つ階になります。
※このページに含まれる情報は、一般的な情報提供のみを目的としています。特に空室状況については現況が異なる場合があるため、詳細についてはお問い合わせ下さい。