八千代台北1-11-1他
オフィス
物件ID: JPN-P-00BL35
新築・竣工予定
即入居可

SKK八千代台駅前ビル

千葉県八千代市八千代台北1-11-1他

13,500 円/坪から

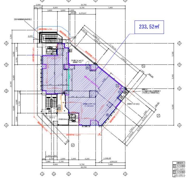
  • 募集面積:70.63 坪 / 233 m² 
  • 物件概要
  • 所在地
  • 平面図

募集区画

所在地

平面図

※基準階とは、多階層ビルにおいて基準となる平面を持つ階になります。

※このページに含まれる情報は、一般的な情報提供のみを目的としています。特に空室状況については現況が異なる場合があるため、詳細についてはお問い合わせ下さい。