末広町14-1
末広町14-1
末広町14-1
末広町14-1
末広町14-1
末広町14-1
末広町14-1
末広町14-1
末広町14-1
末広町14-1
末広町14-1
末広町14-1
オフィス
物件ID: JPN-P-000XQB

SK柏ビル

千葉県柏市末広町14-1

坪単価:お問い合せください

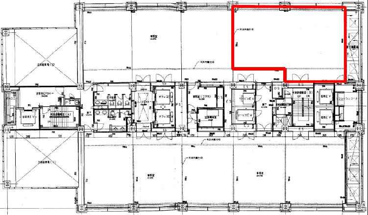
  • 募集面積:35.29 坪 / 117 m² 
  • 物件詳細
  • 物件概要
  • 所在地
  • 平面図

物件詳細

SK柏ビルは、2000年竣工の千葉県柏市にある賃貸オフィスビルです。地上15階/地下2階建て、基準階面積は206.00坪、天井高は2,700mm、OAフロアあり、耐震構造は制震です。最寄り駅は、JR常磐線柏駅から徒歩4分、東武野田線〔アーバンパークライン〕柏駅から徒歩4分、JR常磐線北柏駅から徒歩29分です。

募集区画

所在地

平面図

※基準階とは、多階層ビルにおいて基準となる平面を持つ階になります。

※このページに含まれる情報は、一般的な情報提供のみを目的としています。特に空室状況については現況が異なる場合があるため、詳細についてはお問い合わせ下さい。