【一棟貸】新木場ロジスティクスセンター
【一棟貸】新木場ロジスティクスセンター
倉庫
物件ID: JPN-P-001NI0
IC5km以内

【一棟貸】新木場ロジスティクスセンター

東京都江東区

坪単価:お問い合せください

  • 物件詳細
  • 物件概要
  • 所在地
  • 平面図
  • お問い合わせ

物件詳細

新木場ロジスティクスセンターは、2009年竣工の東京都江東区にある、物流施設、貸し倉庫等の賃貸物流物件です。地上6階建て、延床面積は2,250坪(7,438.02㎡)、天井高5,010mm、構造はS造、耐震構造、用途地域は準工業地域です。最寄り駅は、JR京葉線新木場駅から徒歩25分、東京メトロ有楽町線新木場駅から徒歩25分、りんかい線新木場駅から徒歩25分です。最寄りICは、首都湾岸線新木場出入口から約2.6km、首都湾岸線葛西出入口から約4.8kmです。

所在地

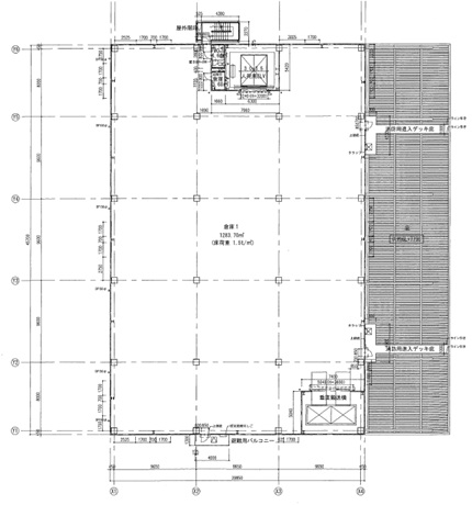
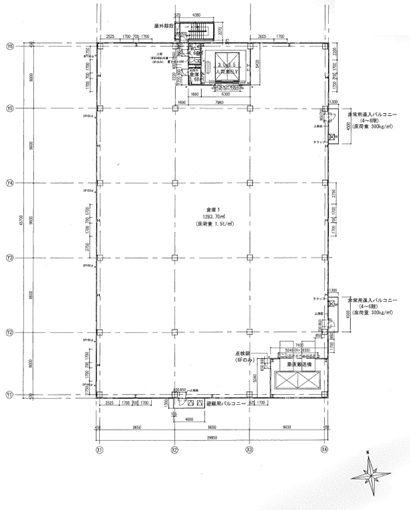
平面図

このページに含まれる情報は、一般的な情報提供のみを目的としています。特に空室状況については現況が異なる場合があるため、詳細についてはお問い合わせ下さい。

※賃貸条件や建物設備は変更する可能性があるため、ご契約内容の詳細についてはお問い合わせ下さい。