【一棟貸】さいたま市吉野町PJ
【一棟貸】さいたま市吉野町PJ
【一棟貸】さいたま市吉野町PJ
倉庫
物件ID: JPN-P-003OOV
掲載終了物件

【一棟貸】さいたま市吉野町PJ

埼玉県さいたま市北区

坪単価:お問い合せください

  • 物件詳細
  • 物件概要
  • 所在地
  • 平面図
  • お問い合わせ

物件詳細

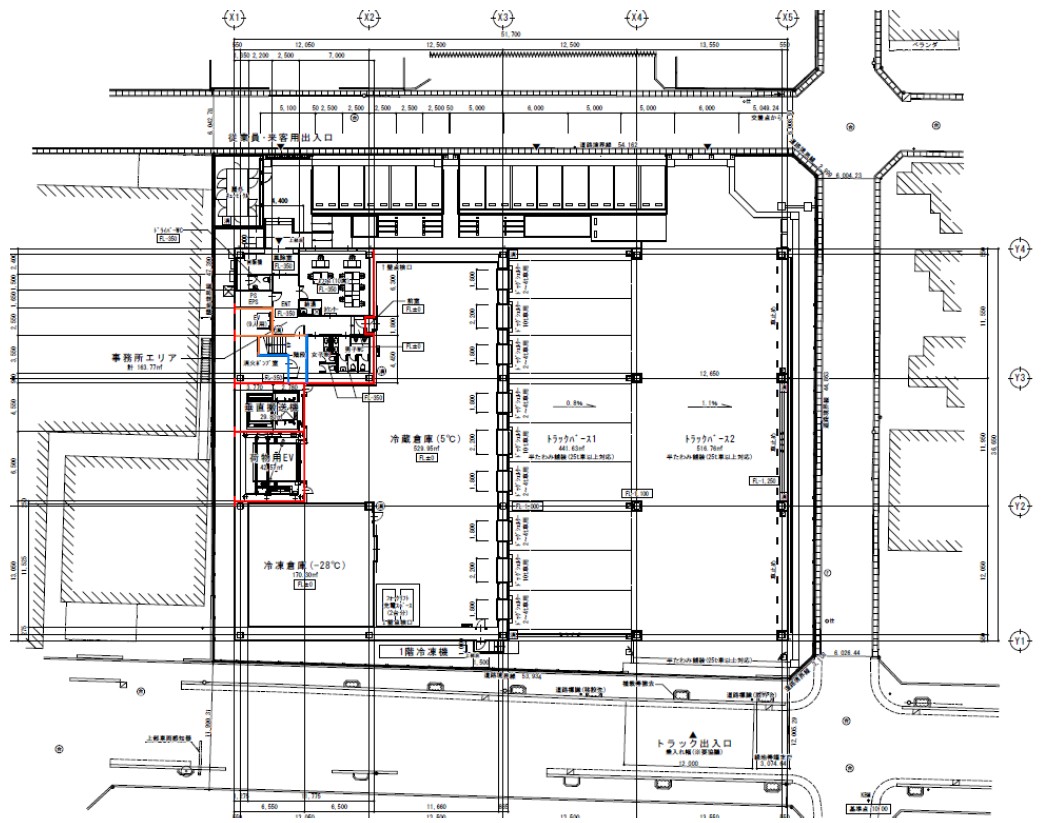
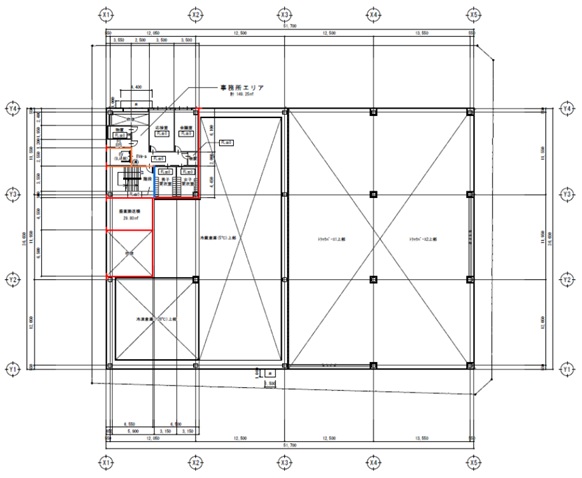
さいたま市吉野町PJは、2026年竣工の埼玉県さいたま市北区にある、物流施設、貸し倉庫等の賃貸物流物件です。地上4階建て、延床面積は1,553.25坪(5,134.71㎡)、天井高5,500mm、構造はS造、耐震構造、用途地域は準工業地域です。最寄り駅は、埼玉新都市交通ニューシャトル吉野原駅から徒歩19分、埼玉新都市交通ニューシャトル沼南駅から徒歩21分です。最寄りICは、東北自動車道岩槻ICから約8.3km、首都埼玉大宮線与野出入口から約10.6kmです。

所在地

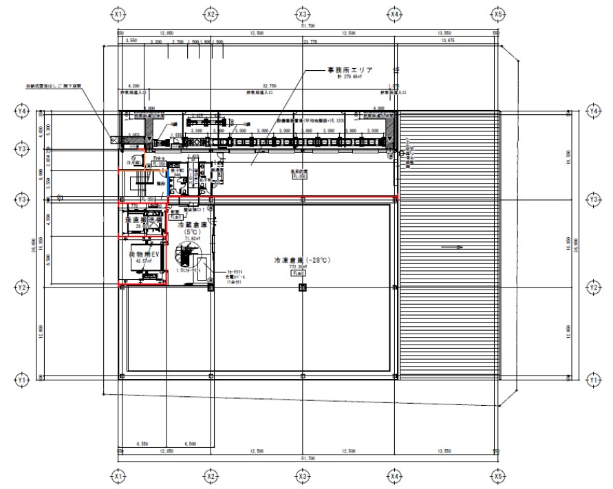
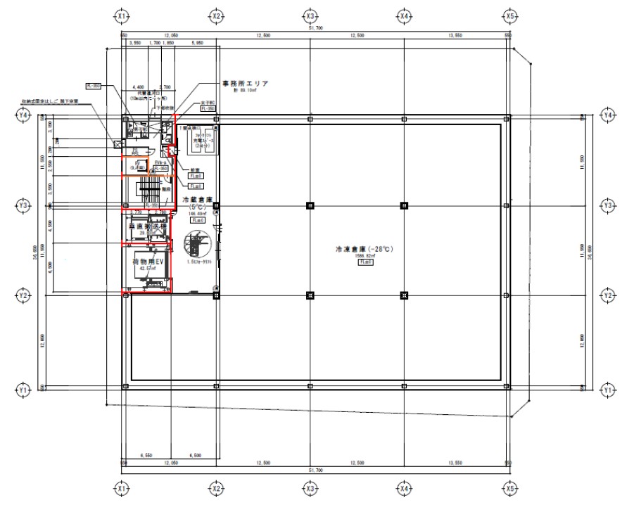
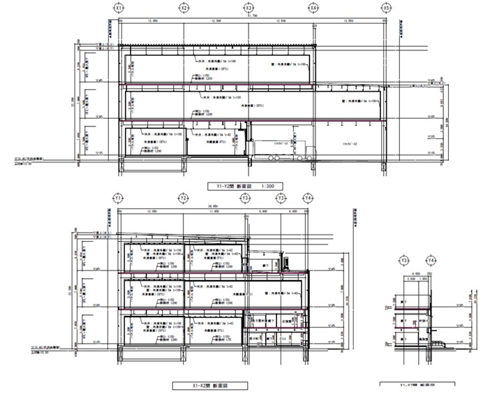
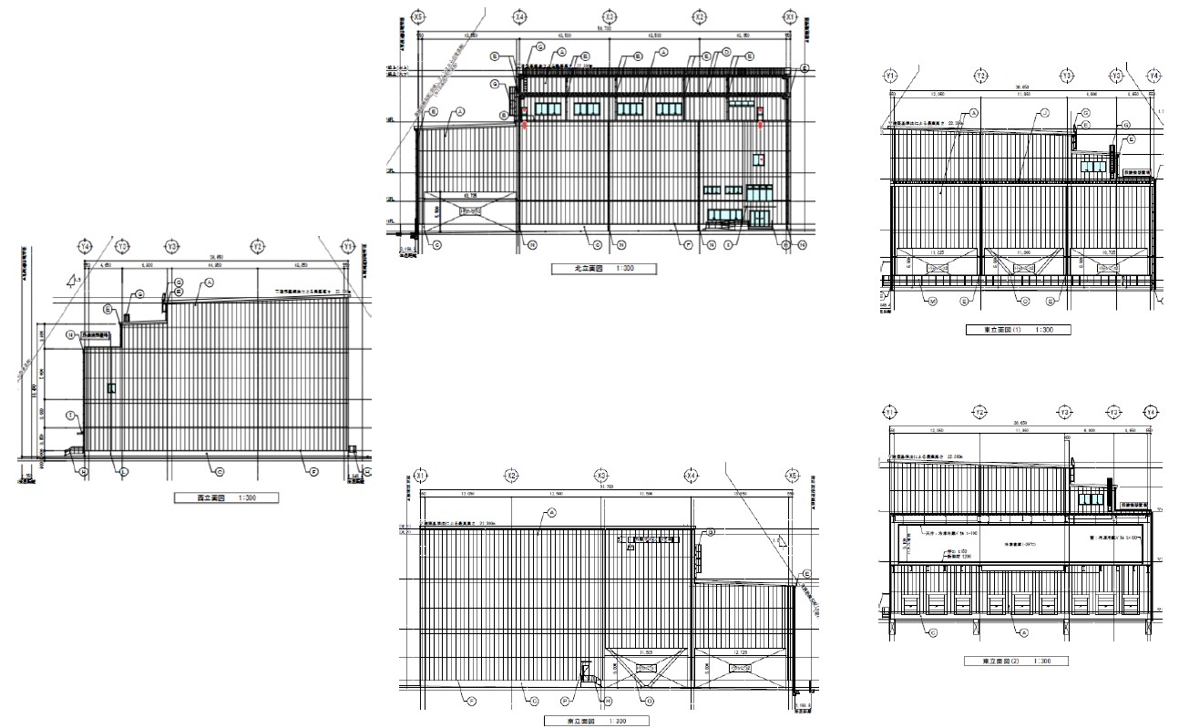
平面図

このページに含まれる情報は、一般的な情報提供のみを目的としています。特に空室状況については現況が異なる場合があるため、詳細についてはお問い合わせ下さい。

※賃貸条件や建物設備は変更する可能性があるため、ご契約内容の詳細についてはお問い合わせ下さい。