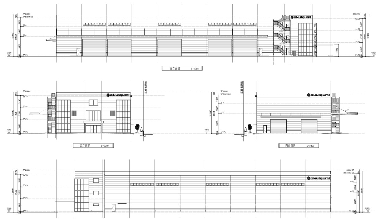
【一棟貸】OKUIGUMI鶴ヶ島倉庫
452.54 坪
/
1,496 m²
坪単価:お問い合せください
JP
お電話
お問合せ
オフィス・事務所
倉庫・物流センター
地図検索
記事
仲介会社様はこちらへ
お気に入り
JP
お電話
お問合せ
倉庫
物件ID:
JPN-P-00BKX5
平屋
3 図面
【一棟貸】OKUIGUMI鶴ヶ島倉庫
埼玉県鶴ヶ島市
坪単価:お問い合せください
募集面積:
452.54 坪
/
1,496 m²
お問い合わせ
お電話
共有する
物件概要
所在地
平面図
募集区画
所在地
平面図
倉庫
埼玉県
鶴ヶ島市
【一棟貸】OKUIGUMI鶴ヶ島倉庫