【一棟貸】MPR船橋ロジスティクスセンター1
242.97 - 1,419.29 坪
/
803 - 4,692 m²
坪単価:お問い合せください
JP
お電話
お問合せ
オフィス・事務所
倉庫・物流センター
地図検索
記事
仲介会社様はこちらへ
お気に入り
JP
お電話
お問合せ
倉庫
物件ID:
JPN-P-001N77
IC5km以内
2 写真
7 図面
【一棟貸】MPR船橋ロジスティクスセンター1
千葉県船橋市
坪単価:お問い合せください
募集面積:
242.97 - 1,419.29 坪
/
803 - 4,692 m²
お問い合わせ
お電話
共有する
物件詳細
物件概要
所在地
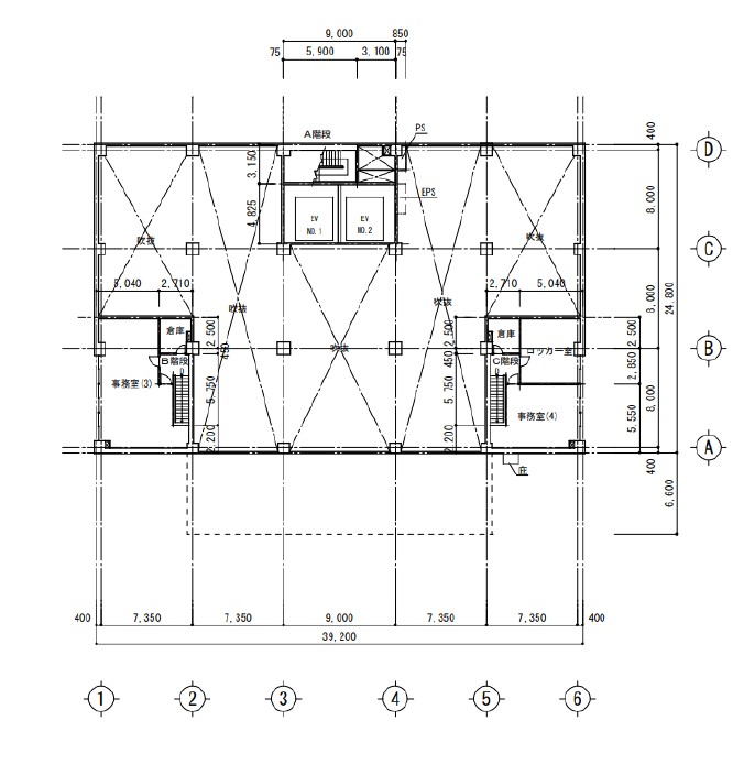
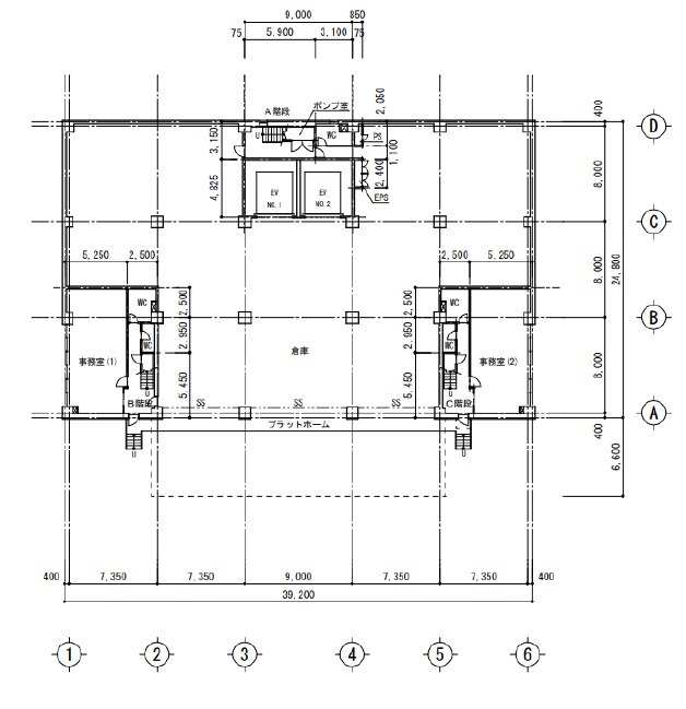
平面図
物件詳細
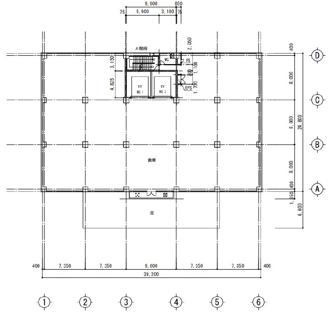
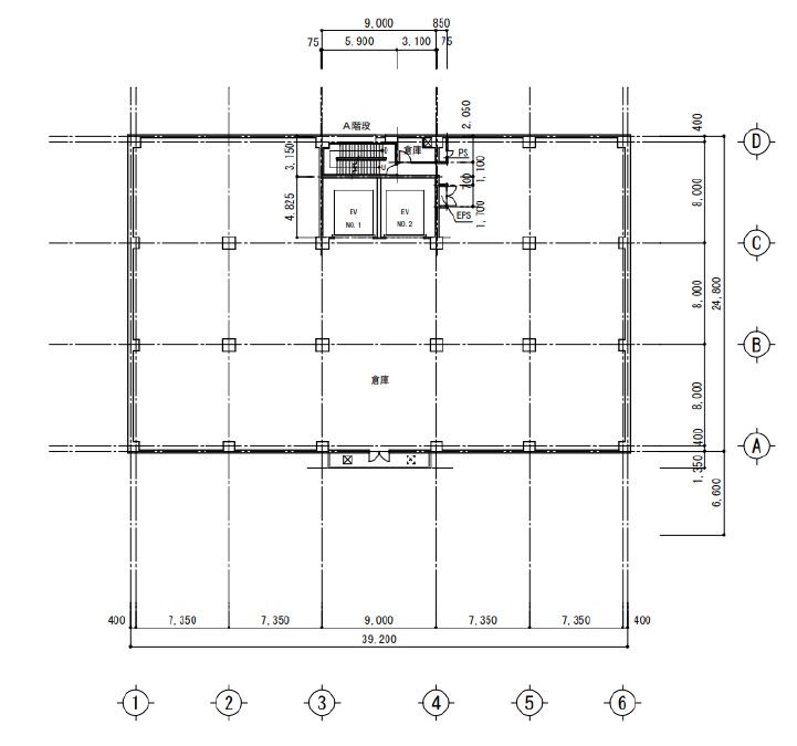
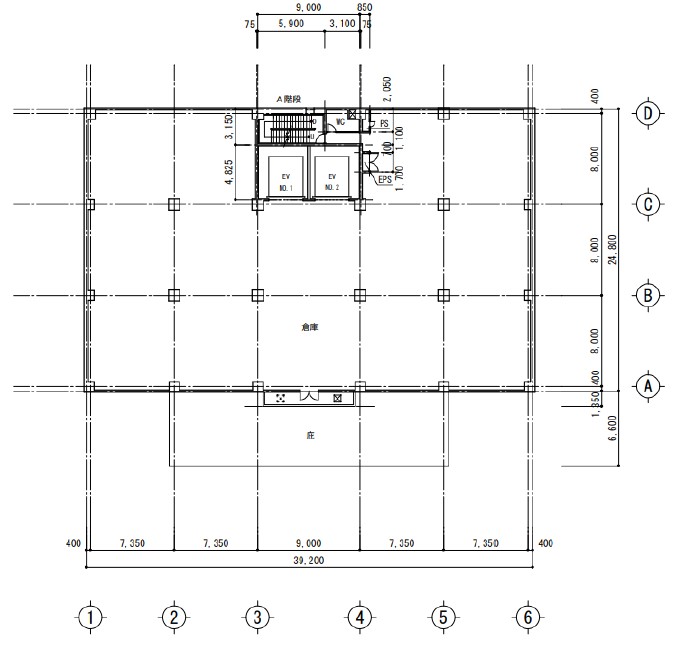
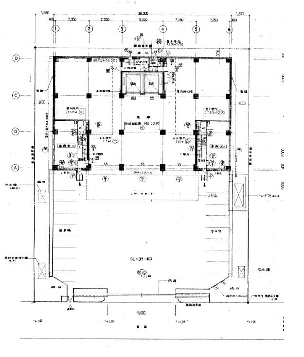
MPR船橋ロジスティクスセンター1は、1991年竣工の千葉県船橋市にある、物流施設、貸し倉庫等の賃貸物流物件です。地上6階建て、延床面積は1,595.85坪(5,275.54㎡)、天井高5,200mm、床荷重2,400kg、構造はRC造、耐震構造、用途地域は工業専用地域です。最寄り駅は、JR京葉線二俣新町駅から徒歩11分です。最寄りICは、京葉道路船橋ICから約2km、東関東自動車道(高谷-潮来)湾岸市川ICから約3.3kmです。
募集区画
所在地
平面図
倉庫
千葉県
船橋市
【一棟貸】MPR船橋ロジスティクスセンター1