【一棟貸】南吹田5丁目倉庫事務所
78.34 坪
/
259 m²
坪単価:お問い合せください
JP
お電話
お問合せ
オフィス・事務所
倉庫・物流センター
地図検索
記事
仲介会社様はこちらへ
お気に入り
JP
お電話
お問合せ
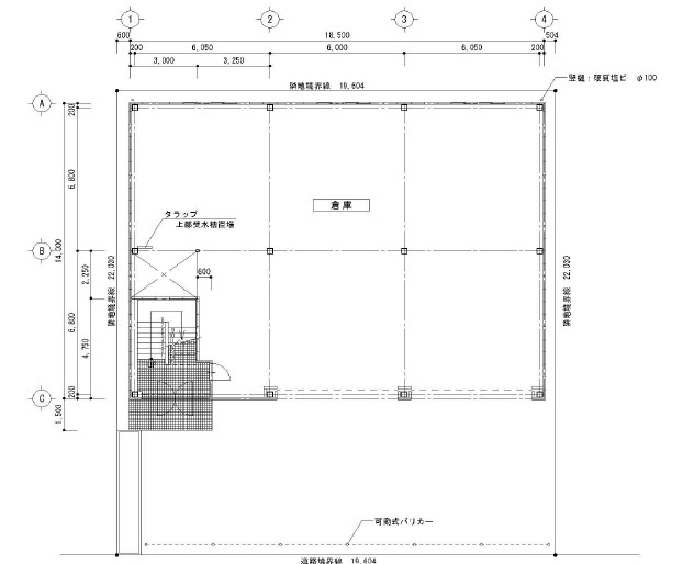
倉庫
物件ID:
JPN-P-00BCY4
IC5km以内
即入居可
5 図面
【一棟貸】南吹田5丁目倉庫事務所
大阪府吹田市
坪単価:お問い合せください
募集面積:
78.34 坪
/
259 m²
お問い合わせ
お電話
共有する
物件詳細
物件概要
所在地
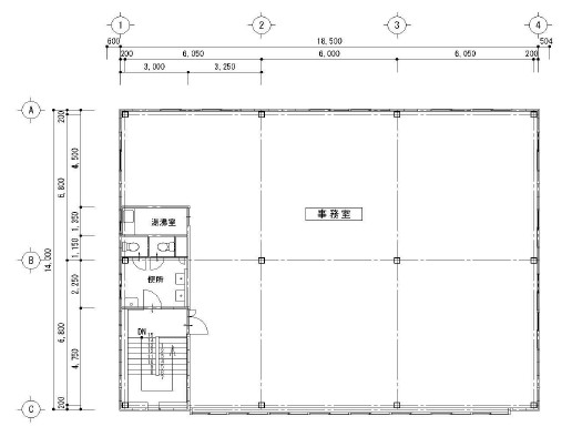
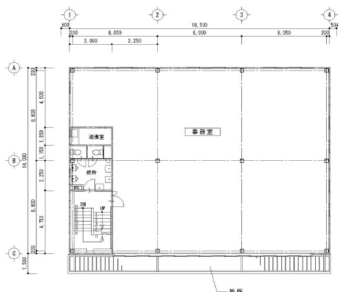
平面図
物件詳細
南吹田5丁目倉庫事務所は、1990年竣工の大阪府吹田市にある、物流施設、貸し倉庫等の賃貸物流物件です。地上3階建て、延床面積は235.04坪(776.99㎡)、耐震構造、用途地域は第一種住居地域です。最寄り駅は、JRおおさか東線南吹田駅から徒歩12分、OsakaMetro御堂筋線江坂駅から徒歩14分、北大阪急行電鉄江坂駅から徒歩14分です。最寄りICは、名神高速道路豊中ICから約4.5kmです。
募集区画
所在地
平面図
倉庫
大阪府
吹田市
【一棟貸】南吹田5丁目倉庫事務所