【一棟貸】松戸物流センター
1,199.81 - 2,508.85 坪
/
3,966 - 8,294 m²
坪単価:お問い合せください
JP
お電話
お問合せ
オフィス・事務所
倉庫・物流センター
地図検索
記事
仲介会社様はこちらへ
お気に入り
JP
お電話
お問合せ
倉庫
物件ID:
JPN-P-0044TP
10 写真
9 図面
【一棟貸】松戸物流センター
千葉県松戸市
坪単価:お問い合せください
募集面積:
1,199.81 - 2,508.85 坪
/
3,966 - 8,294 m²
お問い合わせ
お電話
共有する
物件詳細
物件概要
所在地
平面図
物件詳細
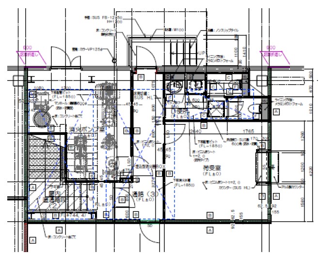
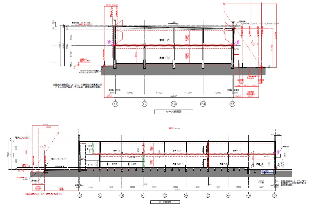
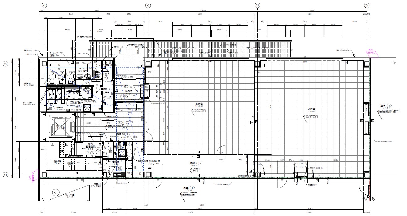
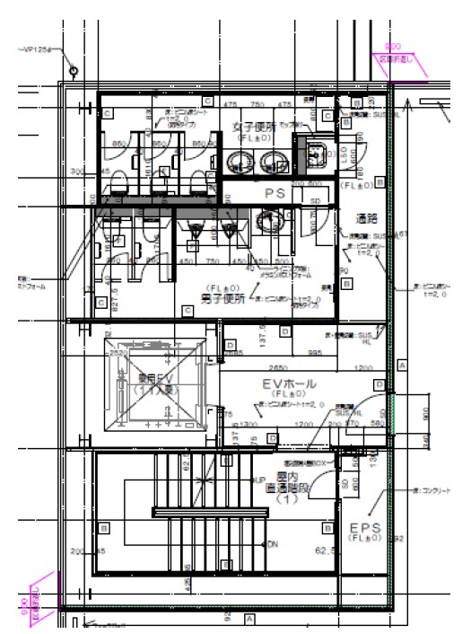
松戸物流センターは、2024年竣工の千葉県松戸市にある、物流施設、貸し倉庫等の賃貸物流物件です。地上2階建て、延床面積は2,699.98坪(8,889.2㎡)、天井高5,500mm、床荷重1,500kg、構造はS造、耐震構造、用途地域は準工業地域です。最寄り駅は、新京成電鉄くぬぎ山駅から徒歩16分、新京成電鉄五香駅から徒歩21分、京成成田空港線・北総鉄道線松飛台駅から徒歩21分です。最寄りICは、東京外環自動車道松戸ICから約8.6kmです。
募集区画
所在地
平面図
倉庫
千葉県
松戸市
【一棟貸】松戸物流センター