倉庫
物件ID: JPN-P-003GLLIC5km以内
即入居可
Hub厚木
神奈川県厚木市
坪単価:お問い合せください
- 募集面積:1,547.16 - 7,873.29 坪 / 5,115 - 26,027 m²
- 物件詳細
- 物件概要
- 所在地
- 平面図
- お問い合わせ
物件詳細
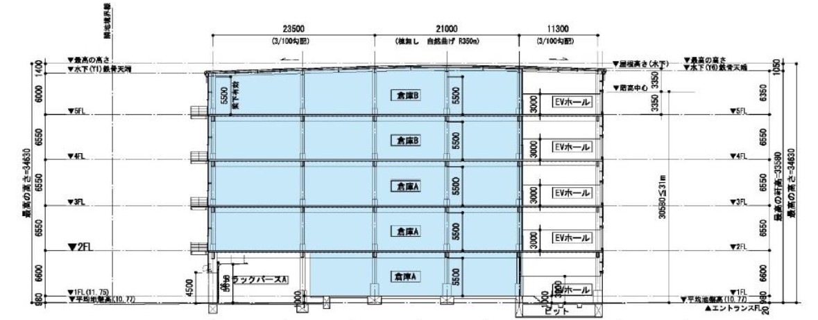
Hub厚木は、2023年竣工の神奈川県厚木市にある、物流施設、貸し倉庫等の賃貸物流物件です。地上5階建て、延床面積は8,069.41坪(26,675.74㎡)、天井高5,500mm、床荷重1,500kg、構造はS+SRC造、耐震構造、用途地域は工業専用地域です。最寄り駅は、JR相模線下溝駅から徒歩48分です。最寄りICは、首都圏中央連絡自動車道(茅ヶ崎-大栄)相模原愛川ICから約3.1km、首都圏中央連絡自動車道(茅ヶ崎-大栄)厚木スマートICから約5.4kmです。
- 垂直搬送機4基 貨物用エレベーター2基実装
- 柱を間引き23.2m×44.5m-55.8mの大スパンを取れるため、フレキシブルなレイアウトが可能(最上階)
- 営業倉庫の適合確認済
- 非常用発電の設置有
募集区画
所在地
※このページに含まれる情報は、一般的な情報提供のみを目的としています。特に空室状況については現況が異なる場合があるため、詳細についてはお問い合わせ下さい。
※賃貸条件や建物設備は変更する可能性があるため、ご契約内容の詳細についてはお問い合わせ下さい。









