【一棟貸】(仮)久喜コールドロジスティクスセンター
21.1 - 1,454.8 坪
/
70 - 4,809 m²
坪単価:お問い合せください
JP
お電話
お問合せ
オフィス・事務所
倉庫・物流センター
地図検索
記事
仲介会社様はこちらへ
お気に入り
JP
お電話
お問合せ
倉庫
物件ID:
JPN-P-003JI8
IC5km以内
6 図面
【一棟貸】(仮)久喜コールドロジスティクスセンター
埼玉県久喜市
坪単価:お問い合せください
募集面積:
21.1 - 1,454.8 坪
/
70 - 4,809 m²
お問い合わせ
お電話
共有する
物件詳細
物件概要
所在地
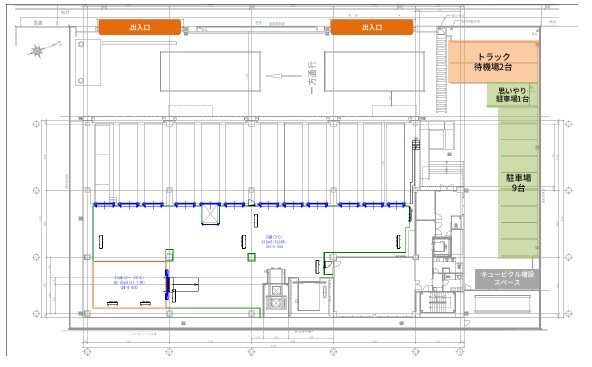
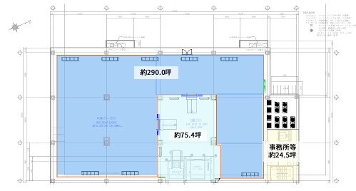
平面図
物件詳細
(仮)久喜コールドロジスティクスセンターは、2024年竣工の埼玉県久喜市にある、物流施設、貸し倉庫等の賃貸物流物件です。地上4階建て、延床面積は1,857.47坪(6,140.4㎡)、天井高4,600mm、床荷重2,000kg、構造はS造、耐震構造、用途地域は工業専用地域です。最寄り駅は、東武伊勢崎線〔スカイツリーライン〕鷲宮駅から徒歩51分です。最寄りICは、東北自動車道久喜ICから約4.6km、首都圏中央連絡自動車道(茅ヶ崎-大栄)白岡菖蒲ICから約4.8kmです。
募集区画
所在地
平面図
倉庫
埼玉県
久喜市
【一棟貸】(仮)久喜コールドロジスティクスセンター