
倉庫
物件ID: JPN-P-004258IC5km以内
【一棟貸】JM141
兵庫県神戸市兵庫区
坪単価:お問い合せください
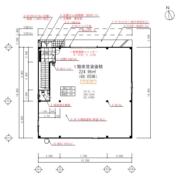
- 募集面積:68.05 坪 / 225 m²
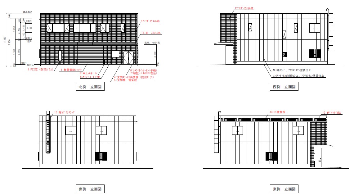
- 物件詳細
- 物件概要
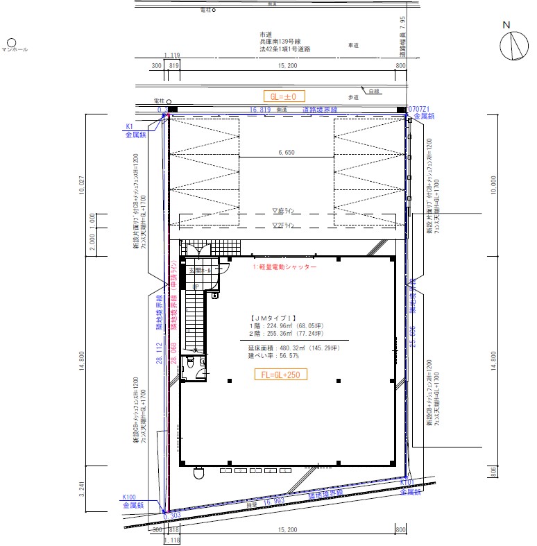
- 所在地
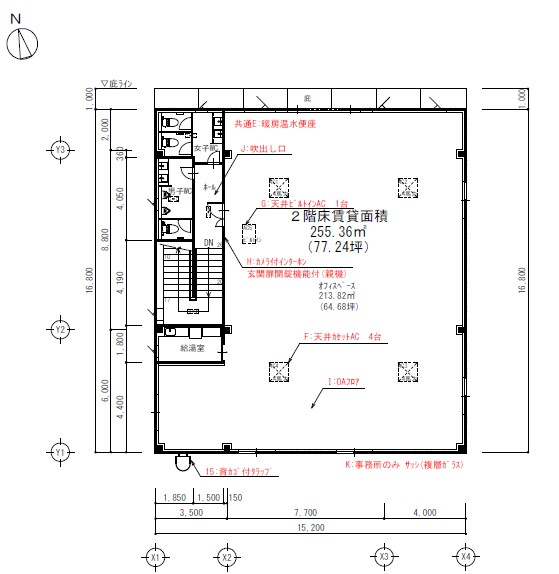
- 平面図
- お問い合わせ
※このページに含まれる情報は、一般的な情報提供のみを目的としています。特に空室状況については現況が異なる場合があるため、詳細についてはお問い合わせ下さい。
※賃貸条件や建物設備は変更する可能性があるため、ご契約内容の詳細についてはお問い合わせ下さい。

兵庫県神戸市兵庫区
坪単価:お問い合せください
※このページに含まれる情報は、一般的な情報提供のみを目的としています。特に空室状況については現況が異なる場合があるため、詳細についてはお問い合わせ下さい。
※賃貸条件や建物設備は変更する可能性があるため、ご契約内容の詳細についてはお問い合わせ下さい。