【一棟貸】JM167
94.74 坪
/
313 m²
坪単価:お問い合せください
JP
お電話
お問合せ
オフィス・事務所
倉庫・物流センター
地図検索
記事
仲介会社様はこちらへ
お気に入り
JP
お電話
お問合せ
倉庫
物件ID:
JPN-P-00BIX5
IC5km以内
4 図面
【一棟貸】JM167
兵庫県神戸市東灘区
坪単価:お問い合せください
募集面積:
94.74 坪
/
313 m²
お問い合わせ
お電話
共有する
物件詳細
物件概要
所在地
平面図
物件詳細
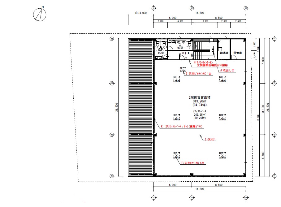
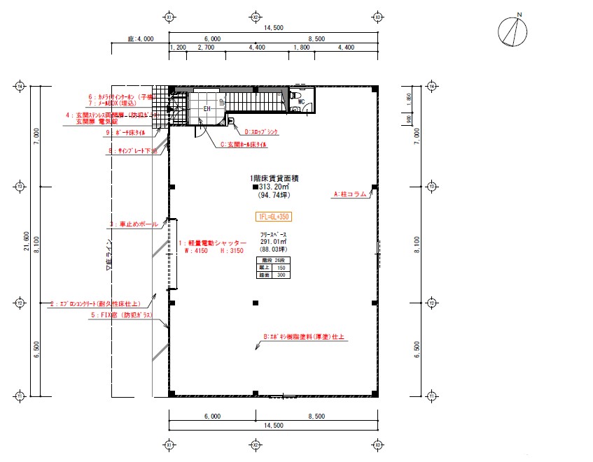
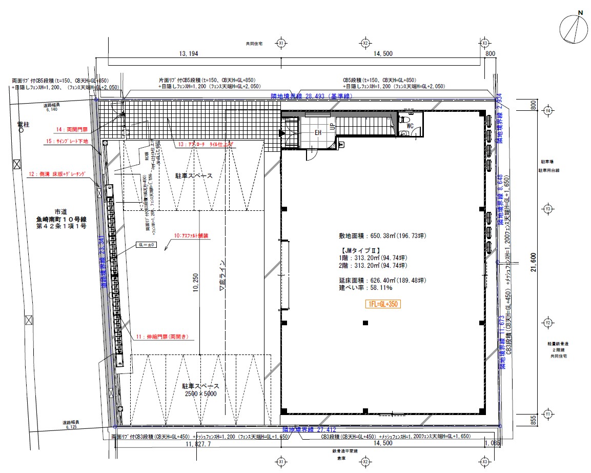
JM167は、2026年竣工の兵庫県神戸市東灘区にある、物流施設、貸し倉庫等の賃貸物流物件です。地上2階建て、延床面積は189.48坪(626.38㎡)、耐震構造、用途地域は準工業地域です。最寄り駅は、阪神本線魚崎駅から徒歩10分、神戸新交通六甲アイランド線魚崎駅から徒歩10分、神戸新交通六甲アイランド線南魚崎駅から徒歩11分です。最寄りICは、阪神3号神戸線魚崎出入口から約1.5km、阪神5号湾岸線住吉浜出入口から約2.1km、阪神5号湾岸線魚崎浜出入口から約2.1kmです。
募集区画
所在地
平面図
倉庫
兵庫県
神戸市
東灘区
【一棟貸】JM167