【一棟貸】JM148
倉庫
物件ID: JPN-P-005GEB
掲載終了物件

【一棟貸】JM148

大阪府大阪市東成区

坪単価:お問い合せください

  • 物件詳細
  • 物件概要
  • 所在地
  • 平面図

物件詳細

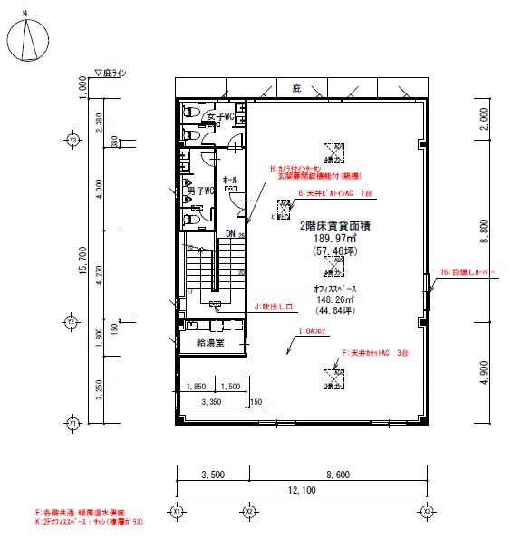
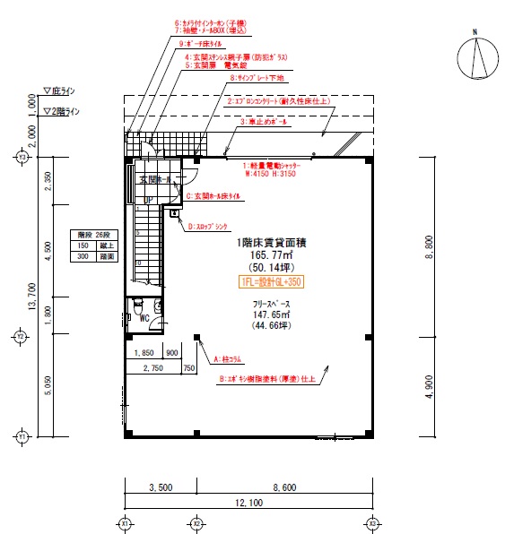
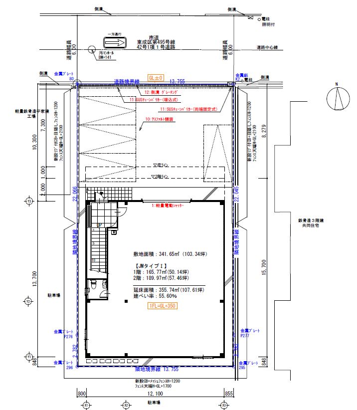
JM148は、2024年竣工の大阪府大阪市東成区にある、物流施設、貸し倉庫等の賃貸物流物件です。地上2階建て、延床面積は107.61坪(355.74㎡)、構造はS造、耐震構造、用途地域は工業地域です。最寄り駅は、OsakaMetro中央線深江橋駅から徒歩9分、OsakaMetro千日前線新深江駅から徒歩10分、OsakaMetro中央線緑橋駅から徒歩17分です。最寄りICは、阪神13号東大阪線高井田出入口から約2.2km、阪神13号東大阪線森之宮出入口から約3.1km、阪神13号東大阪線法円坂出入口から約3.2kmです。

所在地

平面図